Objektdaten
Objektbeschreibung
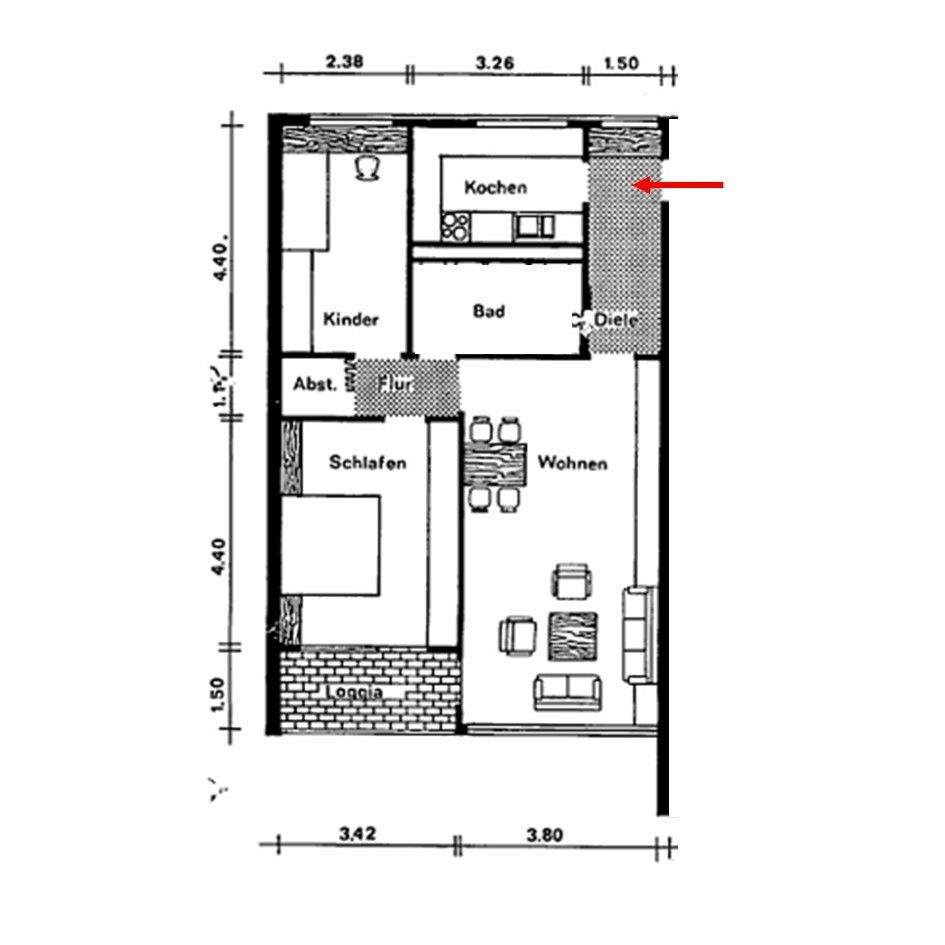
Diese attraktive, freundliche Wohnung befindet sich in ruhiger Lage im Dachgeschoss eines Zweifamilienhauses – Erstbezug 2017. Sie ist Teil einer modernen Wohnanlage mit insgesamt 6 Wohneinheiten in zwei Gebäuden.Ein echtes Highlight ist der ca. 13,5 qm große Balkon. Hier lässt sich der Tag großartig mit einem leckeren Frühstück beginnen oder der Feierabend bei einem Glas Wein gemütlich ausklingen.Als weitere Besonderheit der Wohnung fällt die zentrale Anordnung des Wohnzimmers auf. Durch die große Fensterfront mit Zugang zum Balkon fällt viel Licht ins Ambiente und bewirkt sofort, dass man sich wohl fühlt.Im hinteren Teil der Wohnung befindet sich ein Schlafzimmer und ein weiteres Arbeits- oder Gästezimmer. Dadurch bieten sich gute Nutzungsmöglichkeiten.Die kleine praktische Küche bietet durch zwei Fenster viel Tageslicht. Außerdem ausreichend Platz und Möglichkeit, um nach Herzenslust den Gaumen verwöhnen.Das moderne Bad mit an drei Seiten freistehender Badewanne und einer separaten Dusche, runden die attraktive Wohnung ab.Ein eigener Stellplatz gehört mit zum Gesamtengagement.So funktioniert es
- Alle neuen Anzeigen matchen wir kostenlos mit Deinen Suchparametern.
- Passende Angebote senden wir Dir in einer E-Mail pro Tag.
- Du kannst auch verschiedene Suchen anlegen und Dich jederzeit abmelden. Mehr dazu




