Kaufpreis 650.000 €
Zimmer 6
Größe 160 m²
23758 Gremersdorf
Objektdaten
Veröffentlicht am: 10. November 2025
Energieausweis: Liegt bei der Besichtigung vor
Danke! Bitte bestätige Deine E-Mail-Adresse – wir haben Dir soeben eine Mail geschickt.
Es gab ein Problem beim Absenden. Bitte versuche es erneut.
Bitte bestätige Deine E-Mail-Adresse, um Updates zu erhalten.
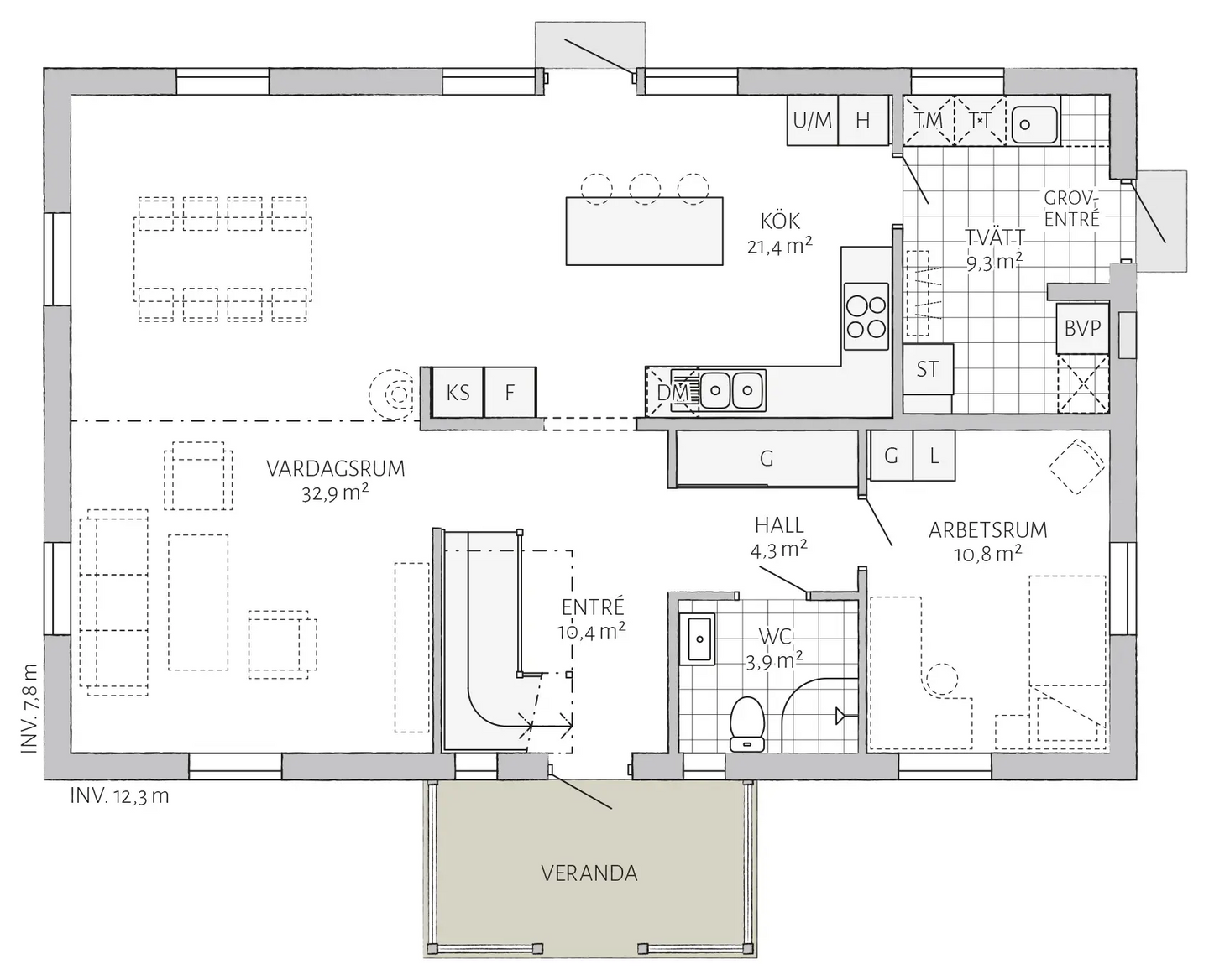
Objektbeschreibung
Das Tallbacken von Eksjöhus ist ein charmantes Haus, das modernen Komfort mit dem nostalgischen Stil schwedischer Landhäuser verbindet. Inspiriert von der Romantik vergangener Jahrhunderte, ist dieses Modell besonders bei Familien beliebt, die den skandinavischen Wohnstil und die Gemütlichkeit eines traditionellen Schwedenhauses schätzen. Mit einer großzügigen Wohnfläche von etwa 160 m², verteilt auf sechs Zimmer, bietet das Tallbacken ausreichend Raum für Familienleben und individuelle Gestaltungsmöglichkeiten.Der Eingang ist mit einer Veranda ausgestattet, die ein idealer Ort zum Entspannen ist und gleichzeitig den klassischen schwedischen Charme unterstreicht. Im Erdgeschoss ist der Wohn- und Essbereich lichtdurchflutet, dank Fensterfronten in drei Himmelsrichtungen. Ein Büro und ein Gäste-WC mit Dusche runden das Erdgeschoss ab.Das Obergeschoss beherbergt die privaten Bereiche der Familie, mit mehreren Schlafzimmern, einem großen Gemeinschaftsraum und einem modernen Bad. Ein besonderes Merkmal ist die flexible Architektur, die an individuelle Wünsche angepasst werden kann, wie zum Beispiel zusätzliche Gauben oder maßgeschneiderte Grundrisse, die den persönlichen Lebensstil in einer modernen Ausführung widerspiegeln.Dieses Haus ist nicht nur optisch ein Hingucker, sondern überzeugt auch durch modernste und umweltfreundliche Technik. Die Thermobodenplatte bildet eine ideale Grundlage für Energieeffizienz und Wohnkomfort. In Kombination mit einer Wärmepumpe und einer Fußbodenheizung sorgt das Heizsystem für wohlige Wärme an kalten Tagen und spart gleichzeitig Heizkosten. Die Lüftungsanlage gewährleistet eine kontinuierliche Frischluftzufuhr, ideal für ein gesundes Raumklima und ein angenehmes Wohngefühl.Wichtiger Hinweis: Der genannte Preis bezieht sich auf das Haus mit Grundstück und Baunebenkosten. Küche, Malerarbeiten innen, Bodenbelagsarbeiten, Außenanlagen und die Kaufnebenkosten sind in dem Preis nicht mit inbegriffen. Die dargestellten Bilder sind Beispielbilder und können Sonderausstattungen enthalten, die nicht im Standardpreis inkludiert sind.
So funktioniert es
- Alle neuen Anzeigen matchen wir kostenlos mit Deinen Suchparametern.
- Passende Angebote senden wir Dir in einer E-Mail pro Tag.
- Du kannst auch verschiedene Suchen anlegen und Dich jederzeit abmelden. Mehr dazu
Wir haben soeben eine E-Mail mit Deinem Suchauftrag an Dich geschickt. – Klicke in dieser Mail auf den Bestätigungslink und schon geht's los. Prüfe ggf. auch Deinen Spamordner.
Es gab ein Problem beim Absenden Deiner E-Mail-Adresse. Bitte versuche es erneut.
WARNUNG: Bitte bestätige Deine E-Mail-Adresse, um regelmäßige Updates zu erhalten.