Objektdaten
Objektbeschreibung
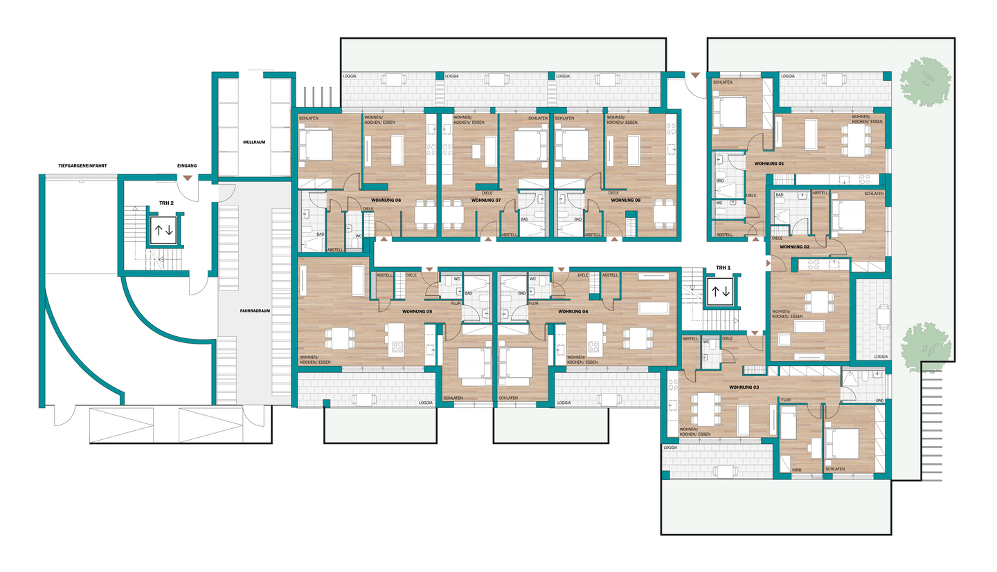
In Mannheim-Waldhof entsteht ein modernes Wohngebäude mit 26 hochwertigen Neubauwohnungen. Das Projekt überzeugt durch klare Architektur, durchdachte Grundrisse und eine Ausstattung, welche Komfort und Stil verbindet. Die Wohnungen bieten ein urbanes Wohngefühl in ruhiger Umgebung – ideal für Singles, Paare und Familien.Großzügige Fensterflächen sorgen für helle, freundliche Räume, während Balkone, Terrassen oder Dachterrassen zusätzlichen Wohnraum im Freien schaffen. Hochwertige Materialien, energieeffiziente Bauweise und eine ansprechende Gestaltung prägen das Gesamtkonzept.Ähnliche Angebote
So funktioniert es
- Alle neuen Anzeigen matchen wir kostenlos mit Deinen Suchparametern.
- Passende Angebote senden wir Dir in einer E-Mail pro Tag.
- Du kannst auch verschiedene Suchen anlegen und Dich jederzeit abmelden. Mehr dazu




