Neubau Reihemittelhaus im Naturpark Steinhuder Meer

Kaufpreis 356.000 €
Zimmer 5
Größe 110 m²
31558 Hagenburg

Objektdaten

Veröffentlicht am: 11. November 2025
Baujahr: 2022
Energieausweis: Liegt bei der Besichtigung vor
Neu

Über ähnliche Angebote direkt informiert werden

  • Objektbeschreibung

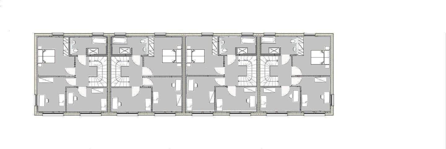
    Objektbeschreibung Folgende Merkmale zeichnen das Bauvorhaben aus:Moderne Architektur und eine Gestaltung die sich harmonisch in ihr Umfeld einfügt.Hochwertige Massive Ausführung nach KfW 55.FußbodenheizungElektrische Rollläden an allen Fenstern und Türelementen30,0 cm dicke Kalksandsteinwände zwischen den ReihenhäusernHochwertige Fliesen in den BädernHochwertiges WärmeverbundsystemLuft/Wasserwärmepumpe, kein Gas oder ÖlHochwertige Sanitärausstattung von deutschen HerstellernGroßes Elektroinstallationspaket nach VDEFarbige Fenster Außen mit dreifach VerglasungWeg zum Haus und die Terrasse werden gepflastertWohnen in Hagenburg im Naturpark Steinhuder Meer Raumaufteilung Insgesamt befinden sich im Haus 2 Bäder. Das Haus ist im EG mit einem großen Wohn/Essbereich und einer offenen Küche ausgestattet.Im EG befindet sich auch ein Gäste WC mit ebenerdiger Dusche und ein großenr HAR/HWR.Im OG befindet sich das Elternschlafzimmer und 2 große lichtdurchflutete Kinderzimmer die Kinderaugen strahlen lassen.Auch das Hauptbadezimmer besticht durch seine Größe und Ausstattung.Im DG besteht die Möglichkeit ein weiteres großes Zimmer mit Bad in Eigenleistungauszubauen.

    Ähnliche Angebote

    So funktioniert es

    • Alle neuen Anzeigen matchen wir kostenlos mit Deinen Suchparametern.
    • Passende Angebote senden wir Dir in einer E-Mail pro Tag.
    • Du kannst auch verschiedene Suchen anlegen und Dich jederzeit abmelden. Mehr dazu
    Nach oben scrollen