Objektdaten
Objektbeschreibung
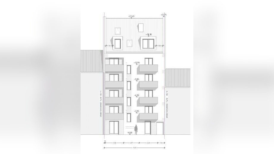
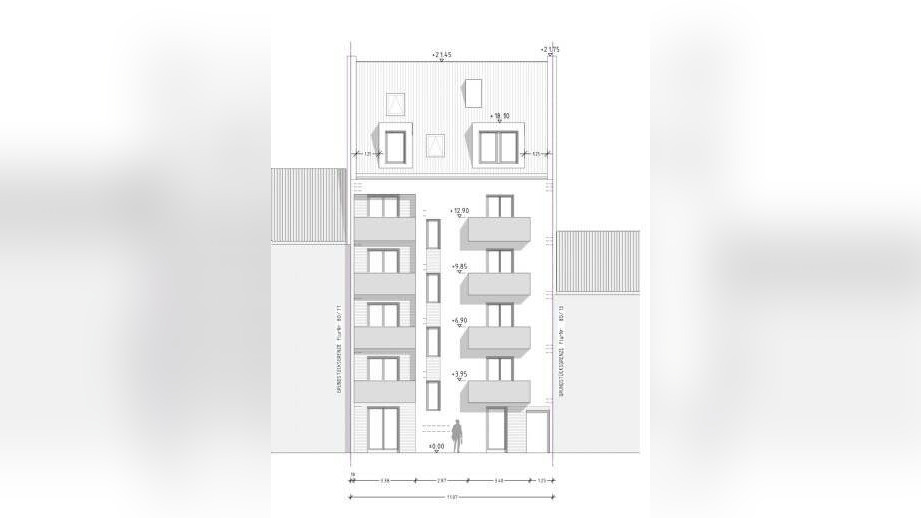
Verkauft wird ein Baugrundstück in unmittelbarer Nähe zum Nürnberger Innenstadt (10 Min Fußweg zum Hauptbahnhof). Das Grundstück befindet sich zwischen zwei Mehrfamilienhäusern und verfügt über eine genehmigungsfähige Bauplanung für 9 Eigentumswohnungen (450 qm Wohnfläche). Die Wohnungsverteilung kann nach Absprache mit der BOB Nürnberg geändert werden. Das Grundstück ist Alleineigentum einer GmbH ohne Schulden oder Lasten. Im Rahmen eines Share Deals wird die komplette GmbH an den neuen Eigentümer übertragen, so dass keine Maklergebühren anfallen. Durch die bisherige Gestaltung der GmbH besteht ein Steuersparpotential von über 100.000 EUR. Auf dem Grundstück befindet sich Altbestand, der abgerissen werden soll. Die Abrissanzeige wurde bereits erstattet. Bei Interesse kann ich Ihnen sämtliche Pläne vom Architektenbüro zukommen lassen.Ähnliche Angebote
So funktioniert es
- Alle neuen Anzeigen matchen wir kostenlos mit Deinen Suchparametern.
- Passende Angebote senden wir Dir in einer E-Mail pro Tag.
- Du kannst auch verschiedene Suchen anlegen und Dich jederzeit abmelden. Mehr dazu

