Kaufpreis 642.000 €
Zimmer 3
Größe 95 m²
93161 Sinzing
Objektdaten
Veröffentlicht am: 12. November 2025
Energieausweis: Liegt bei der Besichtigung vor
Danke! Bitte bestätige Deine E-Mail-Adresse – wir haben Dir soeben eine Mail geschickt.
Es gab ein Problem beim Absenden. Bitte versuche es erneut.
Bitte bestätige Deine E-Mail-Adresse, um Updates zu erhalten.
Objektbeschreibung
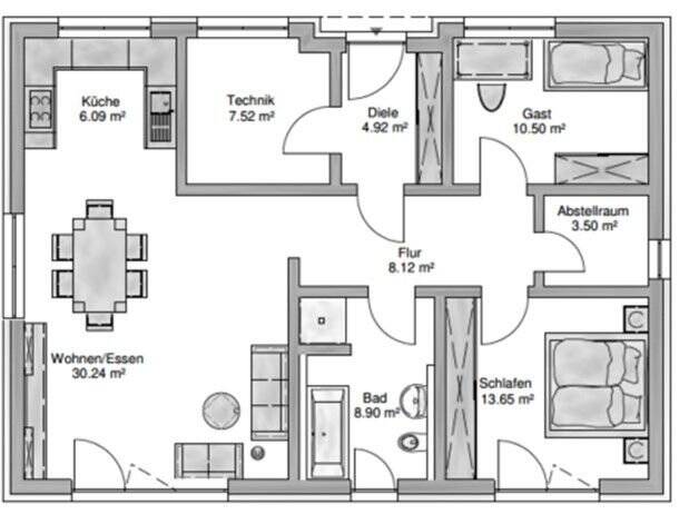
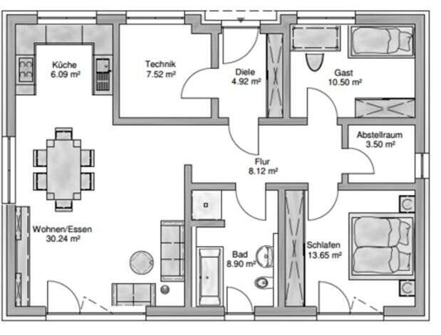
Der durchdacht geplante Bungalow besticht durch eine moderne, offene Raumgestaltung und ein harmonisches Wohnkonzept auf einer Ebene.Was für den gesamten Bungalow gilt, gilt auch für die einzelnen Räume: Optimiert bis ins Detail.Der Windfang bietet Platz für einen großen Garderobenschrank. Die Küche ist offen zum Wohnraum gestaltet und doch optisch getrennt.Im Bad ist Raum für eine Wanne und einen pflegeleichten, bodengleichen Duschbereich.Ein variabel nutzbares Zimmer und der Abstellraum perfektionieren die Planung.Im Mittelpunkt des Hauses befindet sich der großzügige Wohn- und Essbereich mit integrierter, offener Küche. Diese zentrale Zone des Hauses ist lichtdurchflutet und bietet viel Raum für geselliges Beisammensein. Große Fensterflächen schaffen eine freundliche Atmosphäre und verbinden Innen- und Außenraum nahtlos.Das Schlafzimmer ist ruhig gelegen und verfügt über eine angrenzende Ankleide, die praktischen Stauraum und Komfort vereint. Direkt daneben befindet sich das voll ausgestattete Badezimmer, das mit moderner Ausstattung und hochwertigen Materialien überzeugt.Ein weiteres Highlight des Hauses ist das kleine Büro, das sich ideal als Arbeits- oder Rückzugsraum eignet. Der gesamte Grundriss überzeugt durch kurze Wege, eine klare Struktur und eine stimmige Kombination aus Offenheit und Privatsphäre – ideal für modernes Wohnen auf einer Ebene.
So funktioniert es
- Alle neuen Anzeigen matchen wir kostenlos mit Deinen Suchparametern.
- Passende Angebote senden wir Dir in einer E-Mail pro Tag.
- Du kannst auch verschiedene Suchen anlegen und Dich jederzeit abmelden. Mehr dazu
Wir haben soeben eine E-Mail mit Deinem Suchauftrag an Dich geschickt. – Klicke in dieser Mail auf den Bestätigungslink und schon geht's los. Prüfe ggf. auch Deinen Spamordner.
Es gab ein Problem beim Absenden Deiner E-Mail-Adresse. Bitte versuche es erneut.
WARNUNG: Bitte bestätige Deine E-Mail-Adresse, um regelmäßige Updates zu erhalten.