Objektdaten
Objektbeschreibung
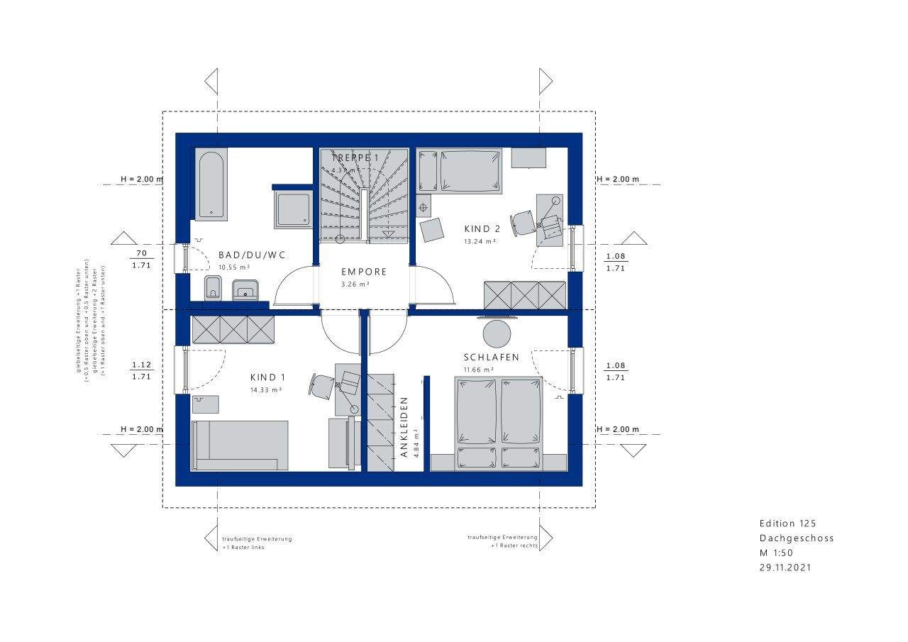
Dieses traumhafte DAVINCI-Haus wurde im Jahr 2020 erbaut und ist der optimale Wohlfühlort für die anspruchsvolle Familie. Auf insgesamt ca. 180 m² Wohnfläche, verteilt auf zwei Ebenen (EG/DG), genießen Sie alle Vorzüge modernsten Wohnkomforts. Zudem steht Ihnen eine Nutzfläche von ca. 52 m² zur Verfügung. Vom einladenden Eingangsbereich mit Garderobe gelangen Sie über die behagliche Diele in den lichtdurchfluteten Wohn- und Essbereich mit direktem Zugang zur ca. 40 m² großen Terrasse sowie zum Garten. Die hochwertige Küche schließt sich unmittelbar an den Wohn- und Essbereich an und lässt keine Wünsche offen. Von hier aus erreichen Sie sowohl den Hauswirtschaftsraum als auch den Abstellraum. Dieser ist auch vom Doppelcarport aus bequem über einen separaten Hauseingang zugänglich. Im Erdgeschoss finden Sie zudem ein bestens ausgestattetes Gästebad mit Dusche sowie ein Arbeitszimmer. Über die moderne Treppe mit stilvoller Glaswand gelangen Sie hinauf in die beschauliche Galerie des Obergeschosses. Von dort aus eröffnen sich Ihnen das komfortable Schlafzimmer mit Ankleide, eigenem Balkon und Zugang zum Masterbad sowie zwei Kinder-/Gästezimmer (ebenfalls mit Balkonzugang). Das ca. 1.940 m² große Grundstück bietet genügend Platz für die Verwirklichung Ihrer Gartenträume.So funktioniert es
- Alle neuen Anzeigen matchen wir kostenlos mit Deinen Suchparametern.
- Passende Angebote senden wir Dir in einer E-Mail pro Tag.
- Du kannst auch verschiedene Suchen anlegen und Dich jederzeit abmelden. Mehr dazu




