Objektdaten
Objektbeschreibung
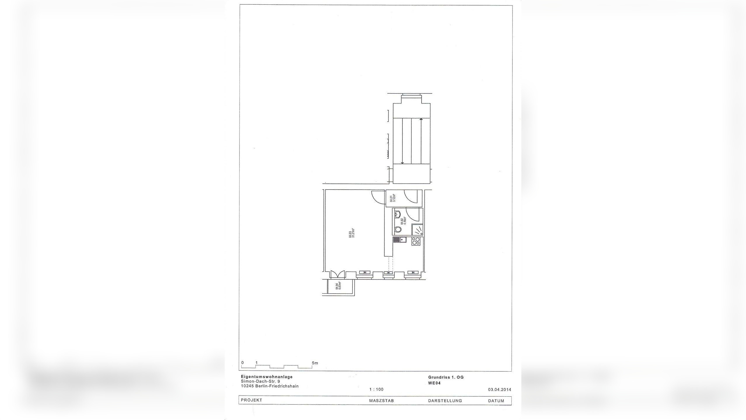
In dieser durchdacht ausgestatteten 1-Zimmer-Wohnung trifft stilvolles Ambiente auf praktische Funktionalität - ideal für Singles oder Pendler, die sich wohlfühlen möchten.. Ruhige Lage im Seitenflügel - entspannt wohnen fernab vom Straßenlärm. Stilvoller Altbau aus dem Jahr 1900, liebevoll saniert im Jahr 2015. Hochwertiger Laminatboden in den Wohnräumen. Pflegeleichte Fliesen in Bad und Küche. Doppelt verglaste Fenster mit Holz- und Kunststoffrahmen. Deckenhöhe ca. 2,70 m. Halbgeöffnete Küche, die Wohn- und Kochbereich harmonisch verbindet. Vollausgestattete Einbauküche inkl. Waschmaschine. Modernisiertes Bad mit Wanne und hochwertiger Ausstattung und stilvollem Design. Fahrradstellplatz im geschützten Innenhof. Möblierung kann auf Wunsch übernommen werdenÄhnliche Angebote
So funktioniert es
- Alle neuen Anzeigen matchen wir kostenlos mit Deinen Suchparametern.
- Passende Angebote senden wir Dir in einer E-Mail pro Tag.
- Du kannst auch verschiedene Suchen anlegen und Dich jederzeit abmelden. Mehr dazu




