Vermietete DHH in ruhiger Wohnlage ***große Terrasse***Parkettfußb.***Kfz-Stellplatz***
Kaufpreis 598.000 €
Zimmer 4
Größe 106 m²
13089 Berlin
Objektdaten
Veröffentlicht am: 15. November 2025
Nebenkosten: 200 €
Energieausweis: Liegt bei der Besichtigung vor
Danke! Bitte bestätige Deine E-Mail-Adresse – wir haben Dir soeben eine Mail geschickt.
Es gab ein Problem beim Absenden. Bitte versuche es erneut.
Bitte bestätige Deine E-Mail-Adresse, um Updates zu erhalten.
Objektbeschreibung
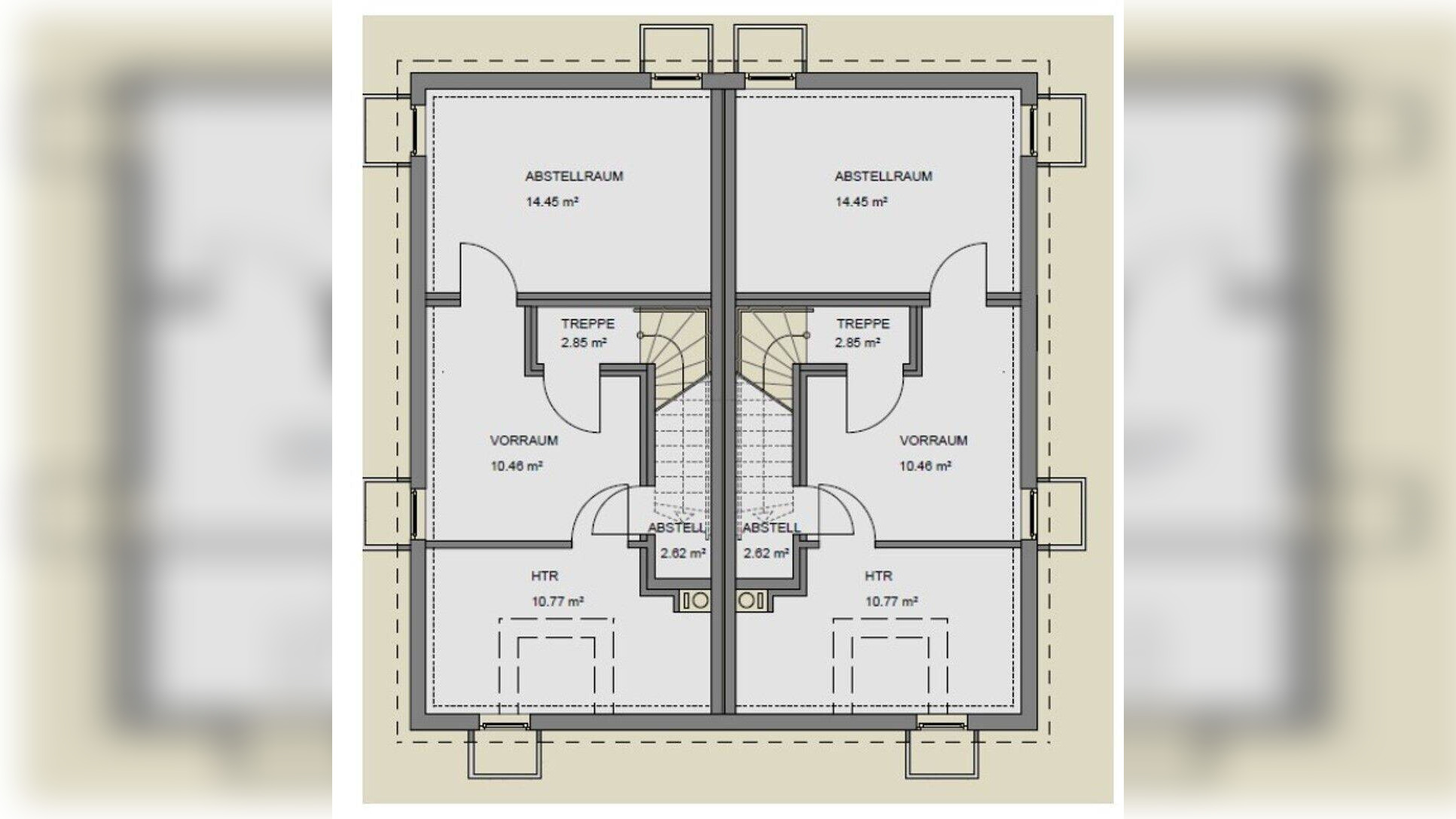
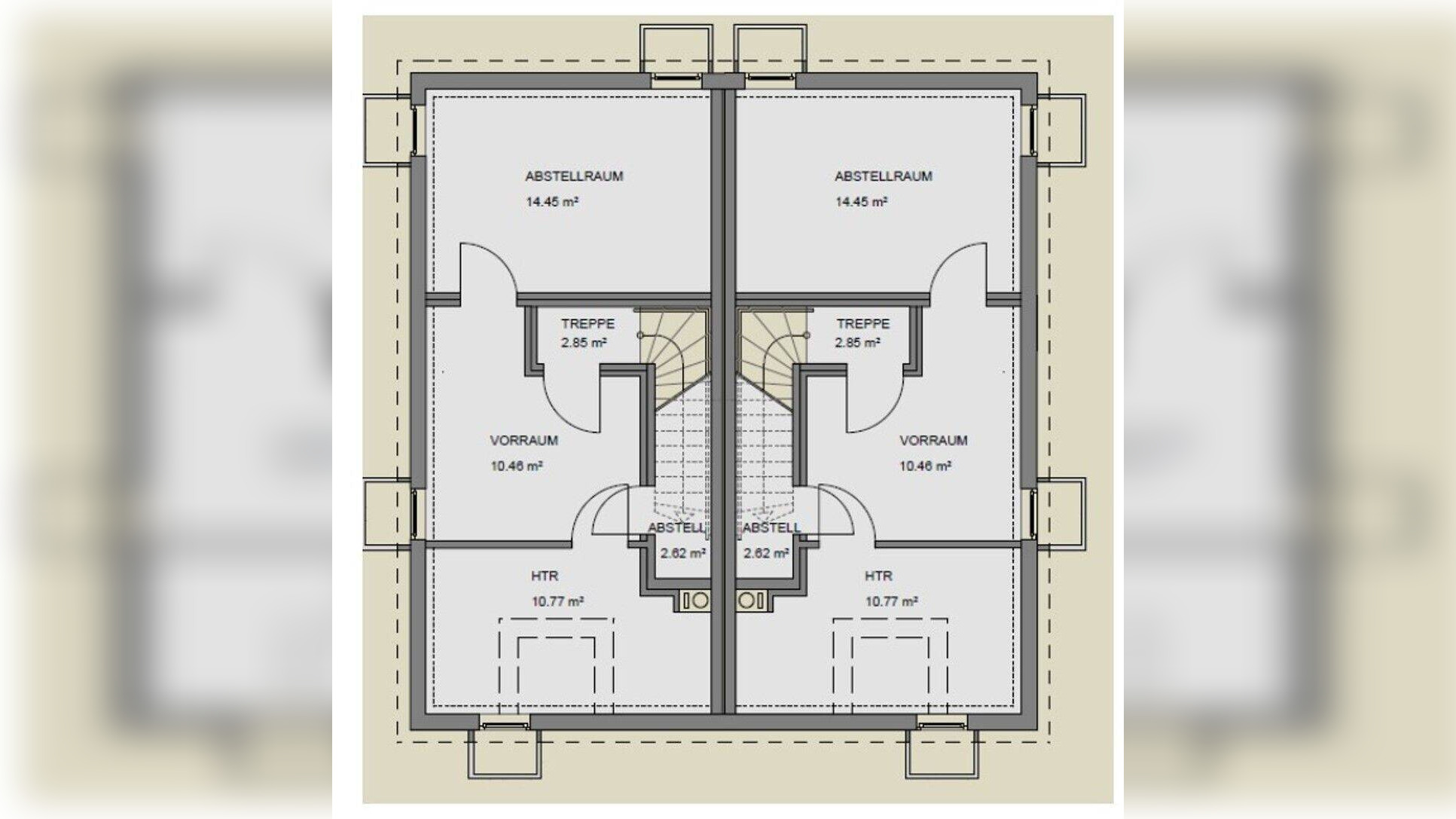
Das moderne, unterkellerte Doppelhaus mit Satteldach wurde im Jahr 2021 errichtet und befindet sich in einem sehr gepflegten und neuwertigen Zustand. Das Gebäude ist mittig in zwei Haushälften geteilt.Die Wohnfläche beträgt ca. 106 m², während das Grundstück eine Größe von rund 160 m² aufweist. Vor dem Haus befindet sich zudem ein eigener Kfz-Stellplatz, der sich direkt auf dem Grundstück befindet.Im Erdgeschoss befinden sich das lichtdurchflutete Wohnzimmer mit einem offenen Küchenbereich sowie der Zugang zur Terrasse mit angrenzendem Garten. Zudem gibt es hier ein Gäste-WC mit bodengleicher Dusche. Über den Treppenbereich gelangt man in das Obergeschoss, in dem sich zwei Schlafzimmer, ein modernes Tageslichtbad mit Badewanne sowie ein Hauswirtschaftsraum mit Waschmaschinenanschluss befinden. Die offene Galerie im Dachgeschoss bietet zusätzlichen Raum, der sich flexibel als weiteres Schlafzimmer oder Arbeitszimmer nutzen lässt. Das Kellergeschoss bietet reichlich Abstellfläche und zusätzlichen Stauraum.In allen Wohnräumen wurde hochwertiger Parkettboden verlegt. Das Haus verfügt über eine Fußbodenheizung sowie elektrisch bedienbare Rollläden in den Wohnbereichen. Eine Sole-Wasser-Wärmepumpe sorgt für eine umweltfreundliche und effiziente Wärme- und Warmwasserversorgung.Das Haus ist seit dem Jahr 2021 vermietet. Die derzeitigen Mieter zahlen eine monatliche Kaltmiete von 1.749,00 € zuzüglich 200,00 € Betriebskosten, sodass sich eine Gesamtmiete von 1.949,00 € ergibt. Für den Kfz-Stellplatz wird zusätzlich eine Miete in Höhe von 50,00 € monatlich erhoben.
Alle neuen Anzeigen matchen wir kostenlos mit Deinen Suchparametern.
Passende Angebote senden wir Dir in einer E-Mail pro Tag.
Du kannst auch verschiedene Suchen anlegen und Dich jederzeit abmelden. Mehr dazu
Wir haben soeben eine E-Mail mit Deinem Suchauftrag an Dich geschickt. – Klicke in dieser Mail auf den Bestätigungslink und schon geht's los. Prüfe ggf. auch Deinen Spamordner.
Es gab ein Problem beim Absenden Deiner E-Mail-Adresse. Bitte versuche es erneut.
WARNUNG: Bitte bestätige Deine E-Mail-Adresse, um regelmäßige Updates zu erhalten.
Sie sehen gerade einen Platzhalterinhalt von Turnstile. Um auf den eigentlichen Inhalt zuzugreifen, klicken Sie auf die Schaltfläche unten. Bitte beachten Sie, dass dabei Daten an Drittanbieter weitergegeben werden.
Sie sehen gerade einen Platzhalterinhalt von Vimeo. Um auf den eigentlichen Inhalt zuzugreifen, klicken Sie auf die Schaltfläche unten. Bitte beachten Sie, dass dabei Daten an Drittanbieter weitergegeben werden.
Sie sehen gerade einen Platzhalterinhalt von YouTube. Um auf den eigentlichen Inhalt zuzugreifen, klicken Sie auf die Schaltfläche unten. Bitte beachten Sie, dass dabei Daten an Drittanbieter weitergegeben werden.
Sie sehen gerade einen Platzhalterinhalt von Turnstile. Um auf den eigentlichen Inhalt zuzugreifen, klicken Sie auf die Schaltfläche unten. Bitte beachten Sie, dass dabei Daten an Drittanbieter weitergegeben werden.