Objektdaten
Objektbeschreibung
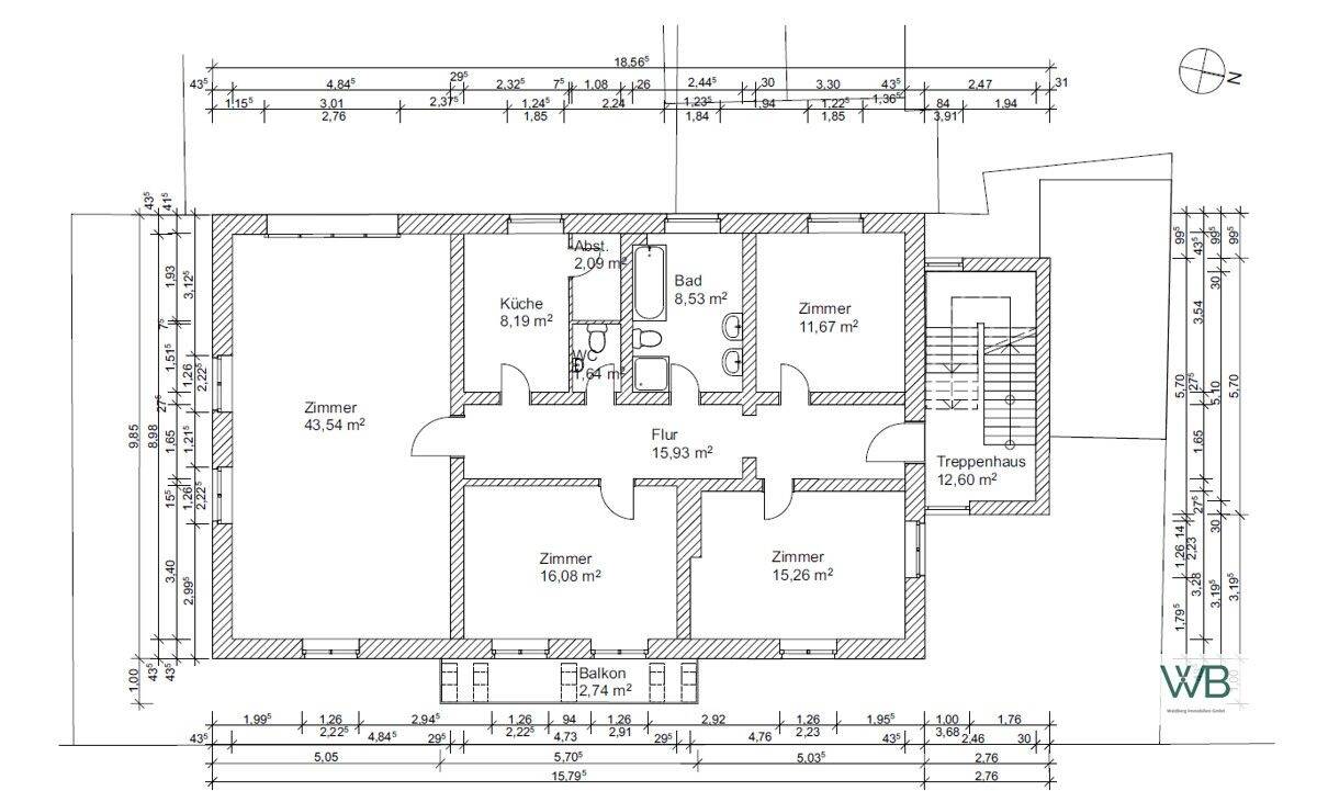
Sie suchen eine frisch sanierte Wohnung mit Altbaucharme in einem Mehrfamilienhaus mit 5 Wohneinheiten in bester Lage vom östlichen Ringgebiet von Braunschweig, dem Theaterwall - und dazu können Sie die Sanierung vorher mitgestalten? Dann sind Sie hier genau richtig.Wir bieten hier noch 2 übrige Wohnungen im Mehrfamilienhaus im Theaterwall, die frisch vor der Sanierung stehen.Eckdaten:Mehrfamilienhaus bestehend aus 5 Wohneinheiten2 Wohnungen stehen zum Verkauf:1. Erdgeschoß Wohnung 125 m22. OG Wohnung 125 m2 mit BalkonFolgendes bieten wir dazu in dem Preis- Neue Fenster 3-fach Verglasung- Massives Mauerwerk- Neues Parkett- Neue Elektrik- Neue Leitungen- Q3 Wände- Neue Decken - Neue Gasheizungen mit Heizkörpern- Türen- Bad (Fliesen plus Geräte)Was können Sie mitgestalten?- Raumaufteilung- Fußbodenmaterial- Fliesenfarbe- Wandfarbe- BadmaterialAls Zusatz buchbar:- Fußbodenheizung- Küche- Spezielle Schiebetüren- Smart Home- Sicherheitstechnik - uvm.- Parkplatz/GarageSie können gerne bei Interesse Kontakt mit uns aufnehmen, wenn Sie ihre Traumwohnung mit gestalten wollen.Ähnliche Angebote
So funktioniert es
- Alle neuen Anzeigen matchen wir kostenlos mit Deinen Suchparametern.
- Passende Angebote senden wir Dir in einer E-Mail pro Tag.
- Du kannst auch verschiedene Suchen anlegen und Dich jederzeit abmelden. Mehr dazu




