Der Natur ganz einfach näher sein… in Ihrem KFW/KFN-Einfamilienhaus!

Kaufpreis 383.000 €
Zimmer 4
69427 Mudau
Größe 126 m2

Objektdaten

Veröffentlicht am: 16. November 2025
Energieausweis: Liegt bei der Besichtigung vor
Neu

Über ähnliche Angebote direkt informiert werden

  • Objektbeschreibung

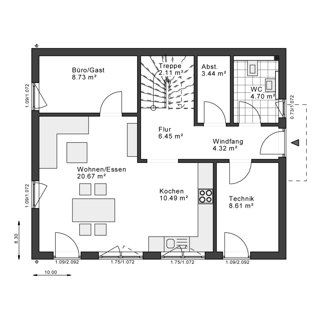
    Kompakte Außenmaße und innen viel Platz für die FamilieBesonderes Highlight ist im Erdgeschoss das Wohn- und Esszimmer, welches sich über die gesamte Hausbreite erstreckt und direkt an die offene Küche anschließt. Optionale Anbauten sorgen hier für noch mehr Platz und ganz nebenbei für eine moderne Optik. Dem Dachgeschoss mit zwei fast gleich großen Kinderzimmern, Familienbad sowie Elternschlafzimmer mit begehbarer Ankleide stehen für Modernität und EleganzDie Satteldacharchitektur dieses Einfamilienhauses wird geprägt durch stilvolle und moderne Gestaltungselementen. Farbige Fassadenakzente betonen die ansprechende Gestaltung des Hauses (Clou 123.1),denn neben den beiden Kinderzimmern, dem Schlafzimmer und dem Bad wird die Etage durch eine Ankleide vollendet.Verschiedene Grundrissvarianten und Architekturelemente sind möglich. Sprechen Sie bitte mit Ihrem Fachberater.

    So funktioniert es

    • Alle neuen Anzeigen matchen wir kostenlos mit Deinen Suchparametern.
    • Passende Angebote senden wir Dir in einer E-Mail pro Tag.
    • Du kannst auch verschiedene Suchen anlegen und Dich jederzeit abmelden. Mehr dazu
    Nach oben scrollen