Objektdaten
Objektbeschreibung
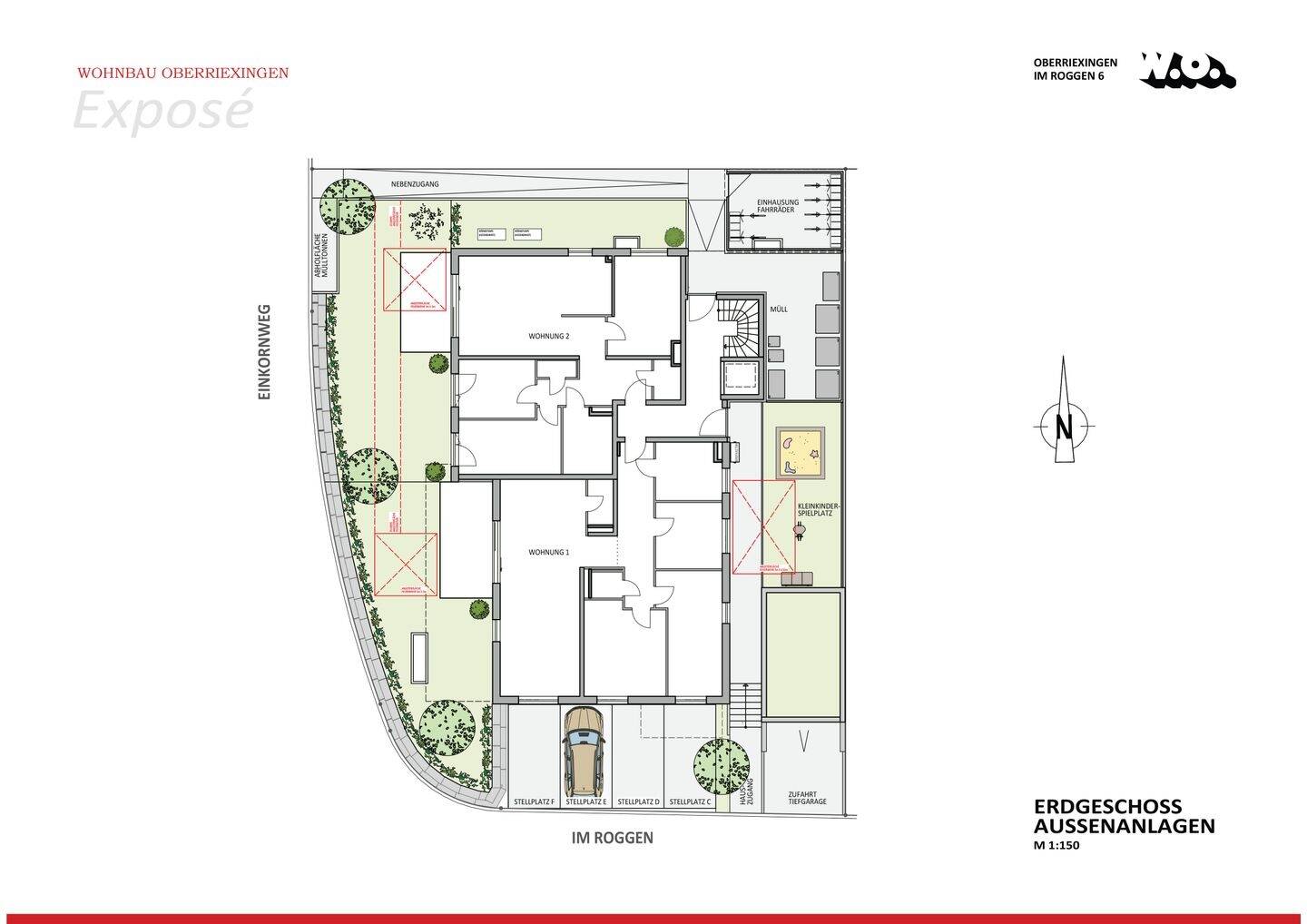
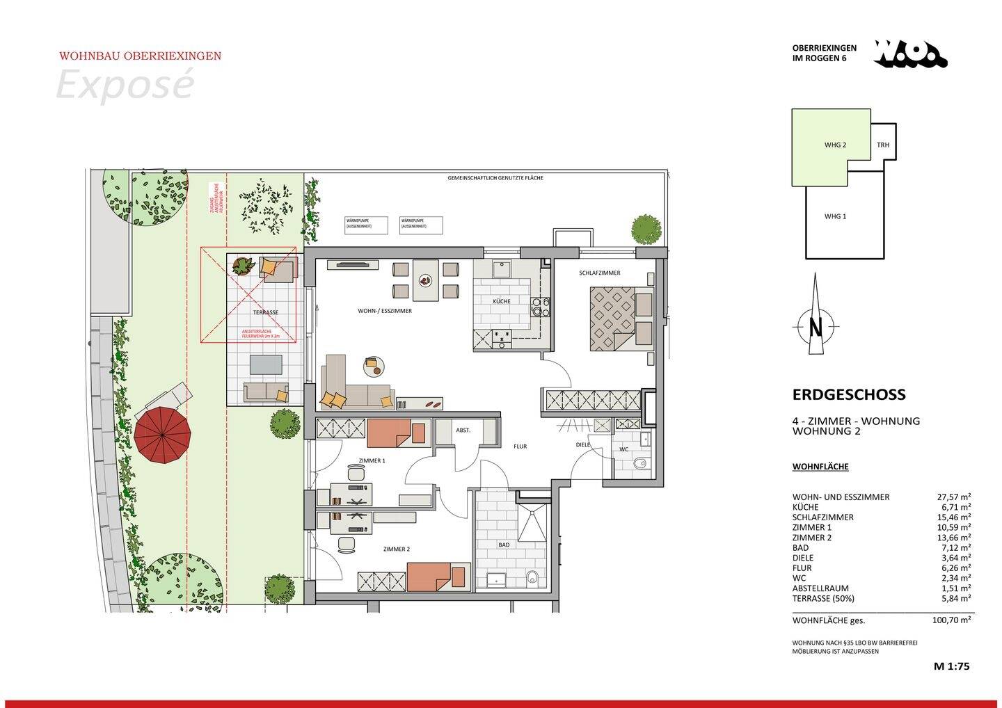
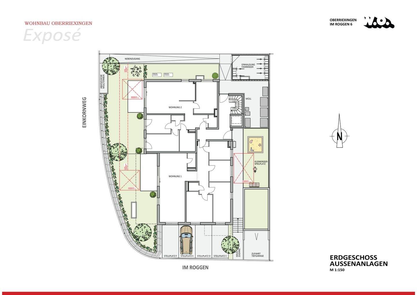
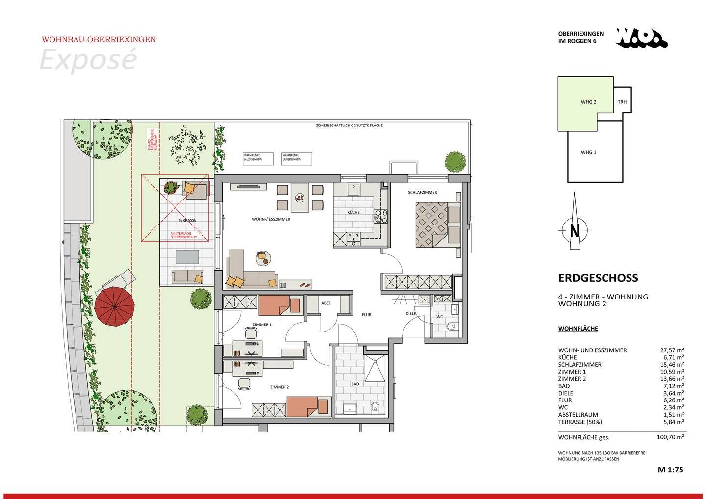
Willkommen in Ihrem neuen Zuhause - einer charmanten 4-Zimmer-Wohnung im Erdgeschoss eines modernen 7-Familienhauses im Neubaugebiet von Oberriexingen. Perfekt für eine Familie mit zwei Kindern, die Raum, Komfort und modernes Wohnen sucht.Die Wohnung begeistert mit einer sonnigen Terrasse und einem eigenen Garten - ideal zum Spielen, Grillen oder einfach zum Abschalten. Der offene Wohn- und Essbereich bildet das lebendige Zentrum des Familienalltags. Die beiden Kinderzimmer und das gemütliche Elternschlafzimmer sorgen für Rückzugsorte mit Wohlfühlfaktor. Das helle Tageslichtbad bringt frische Stimmung in den Morgen, und ein separates Gäste-WC macht den Alltag angenehm unkompliziert.Dank Aufzug ist die Wohnung auch mit Kinderwagen mühelos erreichbar. Für umweltbewusste Wärme sorgt eine effiziente Wärmepumpe in Kombination mit einer hauseigenen PV-Anlage. Im Untergeschoss warten ein gemauerter Abstellraum sowie ein gemeinsamer Wasch- und Trockenraum auf Sie. Tiefgaragen- und Außenstellplätze garantieren entspanntes Ankommen.Ihre W.O.hnfühloase wartet auf Sie. Greifen Sie zu!So funktioniert es
- Alle neuen Anzeigen matchen wir kostenlos mit Deinen Suchparametern.
- Passende Angebote senden wir Dir in einer E-Mail pro Tag.
- Du kannst auch verschiedene Suchen anlegen und Dich jederzeit abmelden. Mehr dazu




