Kaufpreis 49.900 €
Zimmer 1
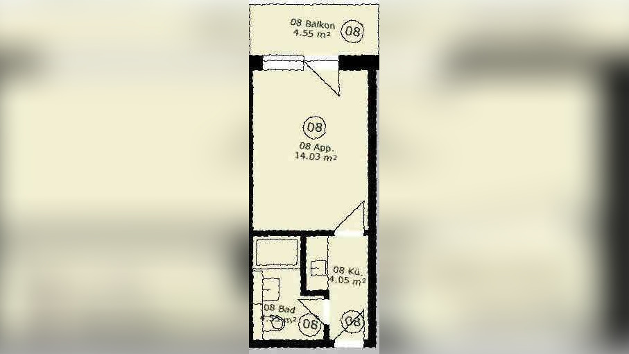
Größe 25 m²
94086 Bad Griesbach i. Rottal
Objektdaten
Veröffentlicht am: 16. November 2025
Baujahr: 2010
Energieausweis: Liegt bei der Besichtigung vor
Danke! Bitte bestätige Deine E-Mail-Adresse – wir haben Dir soeben eine Mail geschickt.
Es gab ein Problem beim Absenden. Bitte versuche es erneut.
Bitte bestätige Deine E-Mail-Adresse, um Updates zu erhalten.
Objektbeschreibung
Diese hübsche, möblierte Ferienwohnung befindet sich im gepflegten Appartementhaus Rottalblick, direkt gegenüber der Wohlfühl-Therme im wunderschönen Kurgebiet des Luftkurortes Bad Griesbach.Gleich hinter dem Haus Rottalblick schließt der Kurpark an. Der Kurwald ist gerade einen Steinwurf entfernt. Zahlreiche Restaurants und Cafés, sowie Geschäfte des täglichen Bedarfs sind im Haus und auch in der näheren Umgebung einfach zu Fuß zu erreichen. In die Altstadt von Bad Griesbach mit dem schönen Stadtplatz sind es nur 3km. Der Stadtbus pendelt unter der Woche für Sie tagsüber zwischen Altstadt und Thermalzentrum.Im Eingangsbereich erwartet Sie der Kochbereich mit Küchenzeile. Gegenüber ist das Badezimmer mit Dusche, Waschbecken und WC.Der lichtdurchflutete, geräumige Wohn- /Schlafbereich bietet Ihnen Zugang zum gemütlichen Balkon.Das Appartement ist liebevoll eingerichtet. Die gesamten Möbel sind im Kaufpreis mit enthalten.Die Wohnung eignet sich bestens zur Vermietung an Feriengäste oder Sie verbringen selber eine erholsame Zeit in Ihrer eigenen Ferienwohnung in Bad Griesbach. Das exklusive Highlight ist sicher der Bademantelgang der Sie ohne Umwege in die Wohlfühl-Therme führt. Es erwartet Sie eine Gesamtwasserfläche von über 1.600 m², die Ihnen 16 Einzelbecken mit Temperaturen von 18 °C bis 38 °C bietet.Hier verbringen Sie wohltuende und entspannte Stunden, ganz unter dem Motto "Vom Bett ins Bad in wenigen Minuten".
So funktioniert es
- Alle neuen Anzeigen matchen wir kostenlos mit Deinen Suchparametern.
- Passende Angebote senden wir Dir in einer E-Mail pro Tag.
- Du kannst auch verschiedene Suchen anlegen und Dich jederzeit abmelden. Mehr dazu
Wir haben soeben eine E-Mail mit Deinem Suchauftrag an Dich geschickt. – Klicke in dieser Mail auf den Bestätigungslink und schon geht's los. Prüfe ggf. auch Deinen Spamordner.
Es gab ein Problem beim Absenden Deiner E-Mail-Adresse. Bitte versuche es erneut.
WARNUNG: Bitte bestätige Deine E-Mail-Adresse, um regelmäßige Updates zu erhalten.