Objektdaten
Objektbeschreibung
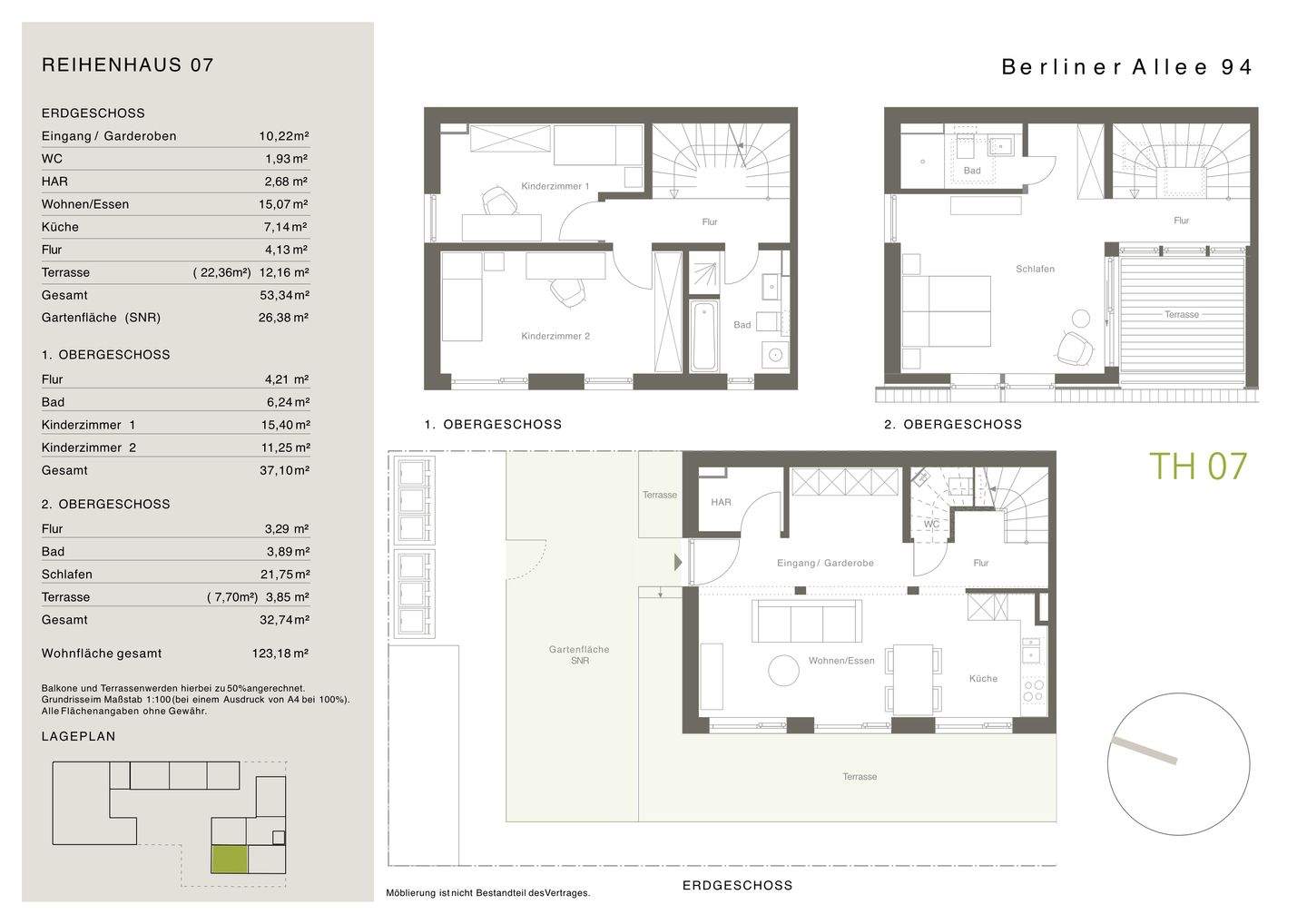
Das im Innenhof gelegene bezugsfertige Stadthaus 8 verfügt über 118 qm Wohnfläche zuzüglich 11qm Gartenfläche. Im EG befinden sich ein Gäste-WC, der HWR, Abstellkammer und der lichtdurchflutete Koch-/Ess-/Wohnbereich. Im 1.OG befinden sich zwei Schlaf-/Kinder/Arbeitszimmer und das Tageslicht-Vollbad; im 2.OG das Duschbad sowie das großzügige Elternschlafzimmer und der Zugang zur ca. 7,7qm großen Dachterrasse. Im Galeriebereich vor der Dachterrasse Liese sich eine Büroecke einrichten.Dank der bodentiefen Fenster sowie Oberlichtern in den Dachgeschossen genießen Sie viel Tageslicht, welches Ihr Zuhause in eine helle und friedliche Oase verwandelt.Ähnliche Angebote
So funktioniert es
- Alle neuen Anzeigen matchen wir kostenlos mit Deinen Suchparametern.
- Passende Angebote senden wir Dir in einer E-Mail pro Tag.
- Du kannst auch verschiedene Suchen anlegen und Dich jederzeit abmelden. Mehr dazu





