Objektdaten
Objektbeschreibung
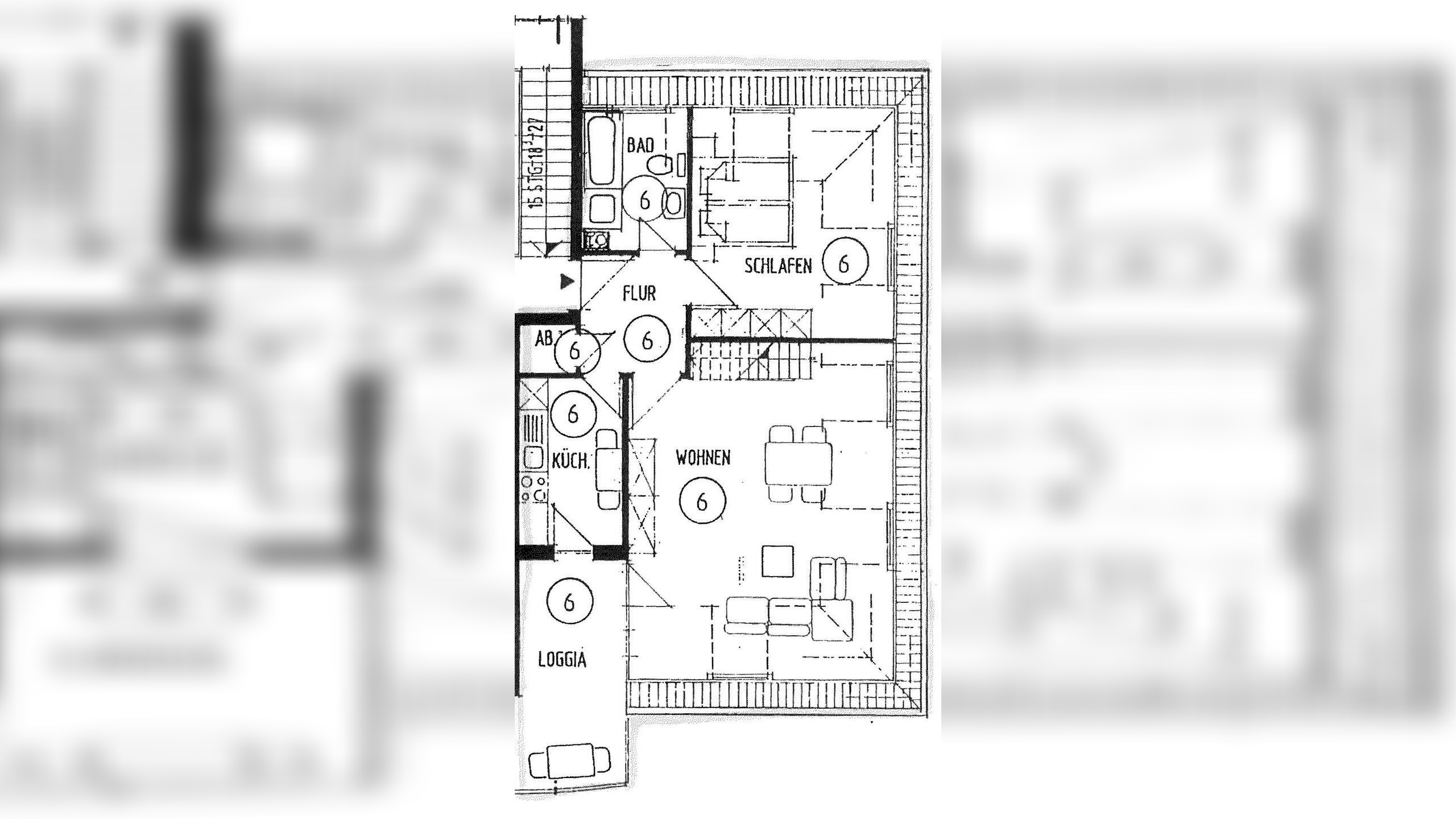
Es handelt sich um ein hochwertig saniertes Gründerzeithaus mit Deckenmalereien im Eingangsbereich. Ein großer Garten im Innenhof bietet viel Platz zum Verweilen.Im Haus befinden sich 9 Wohneinheiten.Ähnliche Angebote
So funktioniert es
- Alle neuen Anzeigen matchen wir kostenlos mit Deinen Suchparametern.
- Passende Angebote senden wir Dir in einer E-Mail pro Tag.
- Du kannst auch verschiedene Suchen anlegen und Dich jederzeit abmelden. Mehr dazu




