Kaufpreis 397.320 €
Zimmer 3
Größe 99 m²
34225 Baunatal
Objektdaten
Veröffentlicht am: 20. November 2025
Baujahr: 2020
Energieausweis: Liegt bei der Besichtigung vor
Danke! Bitte bestätige Deine E-Mail-Adresse – wir haben Dir soeben eine Mail geschickt.
Es gab ein Problem beim Absenden. Bitte versuche es erneut.
Bitte bestätige Deine E-Mail-Adresse, um Updates zu erhalten.
Objektbeschreibung
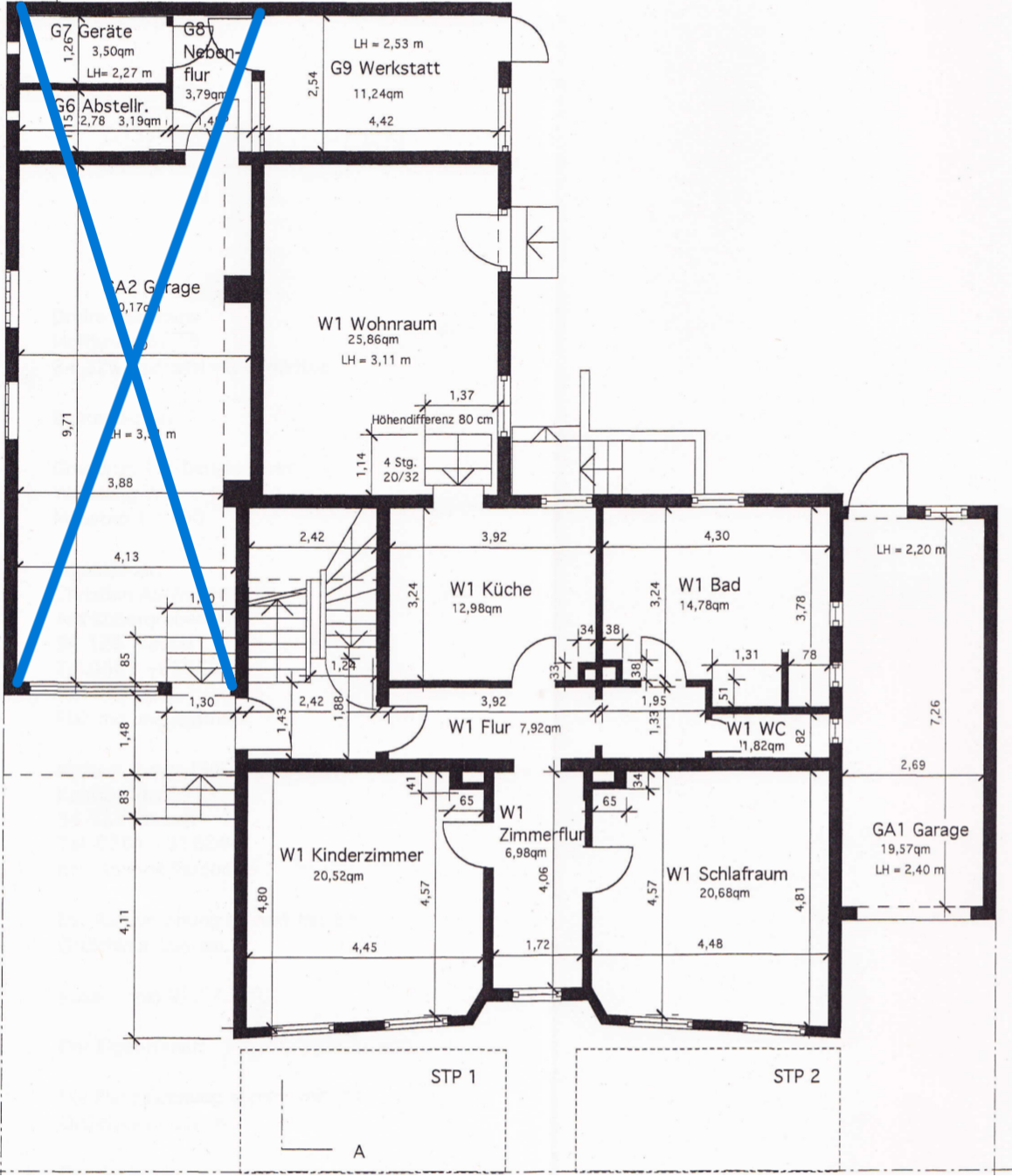
Sie wünschen sich eine moderne, energieeffziente und barrierefreie Eigentumswohnung in bevorzugter Lage? Sie möchten Ihr Kapital sicher und gewinnbringend anlegen? Herzlichen Glückwunsch! 4 helle, top ausgestattete Wohnungen stehen dafür in diesem 6 Familienhauses zur Auswahl. 2 Wohnungen mit ca. 70 m² und je 2 Zimmer, Küche, Bad, Balkon, sowie 2 Wohnungen mit ca. 100 m² und 3 Zimmer, Küche, Bad, Gäste-WC, warten auf Ihre neuen Eigentümer. Zu jeder Wohnung gehören entweder ein großzügiger Balkon oder eine schicke Terrasse, sowie eine Kellerbox. Im Keller befinden sich außerdem noch 4 Tiefgaragenstellplätze und ein Raum für den Anschluss Ihrer Waschmaschine und Ihres Trockners, die sehr gut durch den geräumigen Fahrstuhl erreichbar sind. 5 Pkw-Außenstellplätze runden den Umfang Ihrer neuen Traumimmobilie ab.
So funktioniert es
- Alle neuen Anzeigen matchen wir kostenlos mit Deinen Suchparametern.
- Passende Angebote senden wir Dir in einer E-Mail pro Tag.
- Du kannst auch verschiedene Suchen anlegen und Dich jederzeit abmelden. Mehr dazu
Wir haben soeben eine E-Mail mit Deinem Suchauftrag an Dich geschickt. – Klicke in dieser Mail auf den Bestätigungslink und schon geht's los. Prüfe ggf. auch Deinen Spamordner.
Es gab ein Problem beim Absenden Deiner E-Mail-Adresse. Bitte versuche es erneut.
WARNUNG: Bitte bestätige Deine E-Mail-Adresse, um regelmäßige Updates zu erhalten.