Objektdaten
Objektbeschreibung
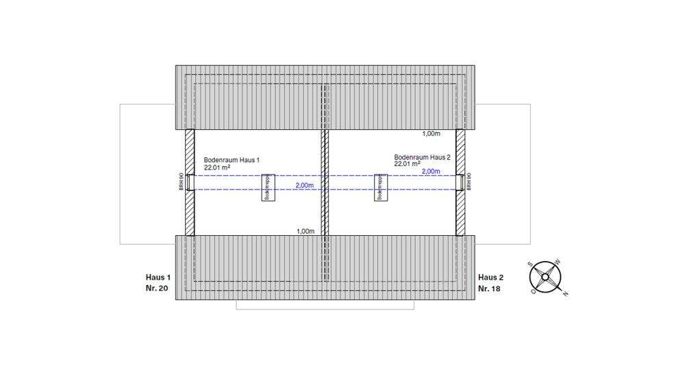
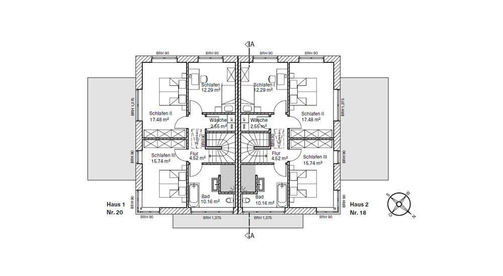
Effizienz wird hier "Gross" geschrieben:Gebaut wird hier ein klimafreundliches Doppelhaus (KW 40) mit je ca. 128,82 m² Wohnfläche je Hälfte.Die Grundrisse der Häuser sind von einem erfahrenen Architekten großzügig, offen und nach modernsten Gesichtspunkten geplant worden. Auf ca. 128 m² Wohnfläche wird Ihnen viel Platz für die Familie geboten. Im Erdgeschoss finden Sie neben der separaten großzügigen Küche, ein großes Wohn-/ Esszimmer mit Ausgang zur schönen Terrasse. Außerdem verfügt das Erdgeschoss über ein Gäste-WC und einen Hauswirtschaftsraum. Über die Treppe gelangen Sie ins Dachgeschoss. Dieses hält 3 Schlafzimmer, ein Tageslicht-Badezimmer mit Dusche und Badewanne und einen Wäscheraum für Sie bereit. Im Kaufpreis enthalten sind die Pflasterarbeiten, Malerarbeiten und Bodenbeläge.So funktioniert es
- Alle neuen Anzeigen matchen wir kostenlos mit Deinen Suchparametern.
- Passende Angebote senden wir Dir in einer E-Mail pro Tag.
- Du kannst auch verschiedene Suchen anlegen und Dich jederzeit abmelden. Mehr dazu




