Kaufpreis 298.000 €
Zimmer 5
Größe 142 m²
53894 Mechernich
Objektdaten
Veröffentlicht am: 22. November 2025
Energieausweis: Liegt bei der Besichtigung vor
Danke! Bitte bestätige Deine E-Mail-Adresse – wir haben Dir soeben eine Mail geschickt.
Es gab ein Problem beim Absenden. Bitte versuche es erneut.
Bitte bestätige Deine E-Mail-Adresse, um Updates zu erhalten.
Objektbeschreibung
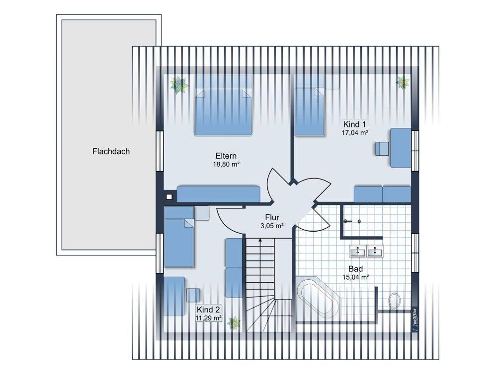
Auf dem Weg zum Neubau einfach mal ein paar Stufen überspringen - hier geht das! Sparen Sie sich die Grundstückssuche, die Planungsphase, den Genehmigungs- und Gründungsaufwand sowie die Betonier-, Maurer- und Dacharbeiten. Die Hausanschlüsse gibt es dann von uns auch noch mit dazu!Auf einem 386m² großen Grundstück finden Sie den auf den Bildern zu sehenden erweiterten Rohbau. Die Maurerarbeiten wurden mit wärmedämmenden Porotonsteinen ausgeführt (inkl. Garage), das Satteldach wurde durch eine lokale Zimmerei in Konstruktionsvollholz gefertigt und mit schwarz-matt edelengobierten Tondachziegeln gedeckt. Dachrinnen und Fallrohre wurden bereits installiert und die Dachüberstände sind mit einem weißen Schutzanstrich versehen. Im aktuellen Ausbauschritt wurden die Fenster sowie ein Element mit Hebe-Schiebe-Funktion im Wohnzimmerbereich eingebaut.Die 142m² Wohnfläche warten jetzt nur noch auf die Fertigstellung. Wer also den Kapitaleinsatz mindern und dafür selbst Hand anlegen möchte kann sofort durchstarten. Weitere Gewerke zur Fertigstellung können aber auch noch durch uns vermittelt werden.Beim Kauf dieser Immobilie fällt keine Provision an, Sie kaufen direkt vom Eigentümer.
So funktioniert es
- Alle neuen Anzeigen matchen wir kostenlos mit Deinen Suchparametern.
- Passende Angebote senden wir Dir in einer E-Mail pro Tag.
- Du kannst auch verschiedene Suchen anlegen und Dich jederzeit abmelden. Mehr dazu
Wir haben soeben eine E-Mail mit Deinem Suchauftrag an Dich geschickt. – Klicke in dieser Mail auf den Bestätigungslink und schon geht's los. Prüfe ggf. auch Deinen Spamordner.
Es gab ein Problem beim Absenden Deiner E-Mail-Adresse. Bitte versuche es erneut.
WARNUNG: Bitte bestätige Deine E-Mail-Adresse, um regelmäßige Updates zu erhalten.