Objektdaten
Objektbeschreibung
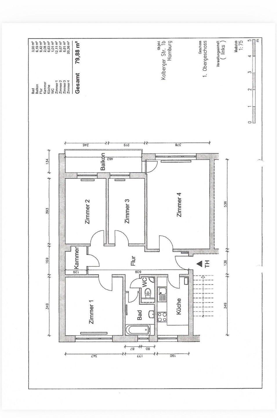
Bei diesem modernen Neubau aus dem Jahr 2025 handelt es sich um ein hochwertig errichtetes Zweifamilienhaus mit zwei vollständig getrennten Wohneinheiten. Die angebotene Wohnung im Obergeschoss verfügt über 80 m² Wohnfläche und umfasst 3 Zimmer mit einer optimalen und gut durchdachten Raumaufteilung.Der Zugang zum Haus erfolgt über einen gemeinsamen Eingangsbereich. Von dort aus führt das Treppenhaus sowohl zur Erdgeschosswohnung als auch zur Wohnung im Obergeschoss. Eine weitere Treppe führt hinauf in das Dachgeschoss, wo sich die separaten Abstellräume beider Wohneinheiten befinden. Jede Einheit ist somit klar voneinander getrennt und bietet ein hohes Maß an Privatsphäre.Die Obergeschosswohnung überzeugt mit modernen großen Fensterflächen sowie einer energiesparenden Ausstattung. Durch die Kombination aus Fußbodenheizung, Außenjalousien und einer effizienten Luftwärmepumpe ist ein zeitgemäßer Wohnkomfort gewährleistet. Eine Wallbox steht ebenfalls zur Verfügung.Das Objekt befindet sich derzeit noch in der Fertigstellung und wird rechtzeitig zur Übergabe vollständig ausgebaut und bezugsfertig sein.So funktioniert es
- Alle neuen Anzeigen matchen wir kostenlos mit Deinen Suchparametern.
- Passende Angebote senden wir Dir in einer E-Mail pro Tag.
- Du kannst auch verschiedene Suchen anlegen und Dich jederzeit abmelden. Mehr dazu





