Objektdaten
Objektbeschreibung
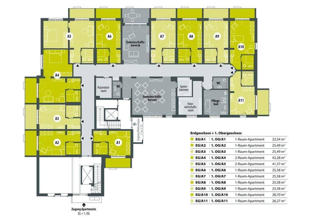
Im ersten Bauabschnitt wurde ein Gebäude errichtet, das generationsübergreifendes Wohnen von jungen Menschen, Familien und Senioren vereint. Zwei separate Hauseingänge (1 und 1a) trennen räumlich die beiden Senioren-Wohnbereiche, mit jeweils 11 Apartments, von den 15 Wohnungen in den oberen Etagen. Alle Wohnungen und Apartments verfügen über eine hochwertige Ausstattung. Fußbodenheizungen, ausgewählte Materialen und Oberflächen sowie modernes Design schaffen eine wohnliche Atmosphäre. Lichtdurchflutete Wohnungen und Apartments, vollkommene Barrierefreiheit und eine wunderschön gestaltete Außenanlage, mit ausreichenden PKW-Stellplätzen.Ähnliche Angebote
So funktioniert es
- Alle neuen Anzeigen matchen wir kostenlos mit Deinen Suchparametern.
- Passende Angebote senden wir Dir in einer E-Mail pro Tag.
- Du kannst auch verschiedene Suchen anlegen und Dich jederzeit abmelden. Mehr dazu





