Objektdaten
Objektbeschreibung
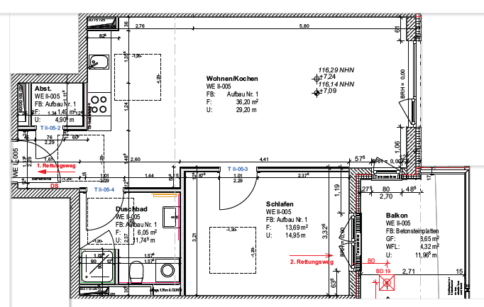
Die denkmalgeschützte Wohnanlage mit ihren zwei- bis dreigeschossigen Altbauten wurde in den Jahren 1914 - 1916 erbaut. Liebevoll wurden die Häuser in den letzten Jahren modernisiert. Die kleinen Mehrfamilienhäuser befinden sich in ruhigen Seitenstraßen von Leipzig-Lindenthal. Alle Wohnungen haben einen rückkanalfähigen Breitbandkabelanschluss und sind an eine Zentralheizung mit zentraler Warmwasserversorgung angeschlossen. Sämtliche Bäder verfügen über ein Fenster und sind modern gefliest. Balkone oder Wintergärten laden zur Entspannung ein. Auf Wunsch können Sie ein dazugehöriges Gartenstück zur Wohnung separat anmieten.Ähnliche Angebote
So funktioniert es
- Alle neuen Anzeigen matchen wir kostenlos mit Deinen Suchparametern.
- Passende Angebote senden wir Dir in einer E-Mail pro Tag.
- Du kannst auch verschiedene Suchen anlegen und Dich jederzeit abmelden. Mehr dazu





