Objektdaten
Objektbeschreibung
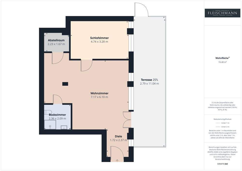
Kurzbeschreibung Alternde Stadt? Barrierefreie Wohnung! Objekt Topp Gebäude, topp Lage, Topp Preis! Sehr viel Platz um das Gebäude sorgt für das freiräumige Wohlgefühl eines Einfamilienhauses. Die ruhige Lage begeistert zusätzlich. Das diese in Verbindung mit so einer guten Infrastruktur steht, ist einer der Besonderheiten dieser Immobilie. Die großzügige Raumgestaltung ist auch für Rollifahrer gut geeignet und hat sich auch so beim Vormieter bewährt. Das sichert dem Kapitalanleger eine dauerhaft gute Vermietbarkeit und wurde auch bisher so genutzt. Der Mieter oder Eigennutzer wird die schöne große Terrasse - gerade bei Bewegungseinschränkung - zu schätzen wissen. Wir bieten Ihnen hier in ruhiger, zentraler Lage ein sehr energieeffizientes Gebäude mit moderner Ausstattung (z.B. Blockheizkraftwerk), indem es sich prima leben lässt. Der Pächter der Dachfläche bietet den Strom etwas unter dem SWSZ Comforttarif. Das macht das Leben leichter. Die Klasse der Immobilie und ihre Lage machen eine Investition hier zu einer recht sicheren Anlage. Einen virtuellen Rundgang und weiterführende Informationen zu dieser Immobilie erhalten Sie auf unserer Homepage www.hauptmakler.de oder schreiben Sie uns eine Email an [email protected] oder rufen Sie uns an unter +49 3681 724023.Ähnliche Angebote
So funktioniert es
- Alle neuen Anzeigen matchen wir kostenlos mit Deinen Suchparametern.
- Passende Angebote senden wir Dir in einer E-Mail pro Tag.
- Du kannst auch verschiedene Suchen anlegen und Dich jederzeit abmelden. Mehr dazu




