Objektdaten
Objektbeschreibung
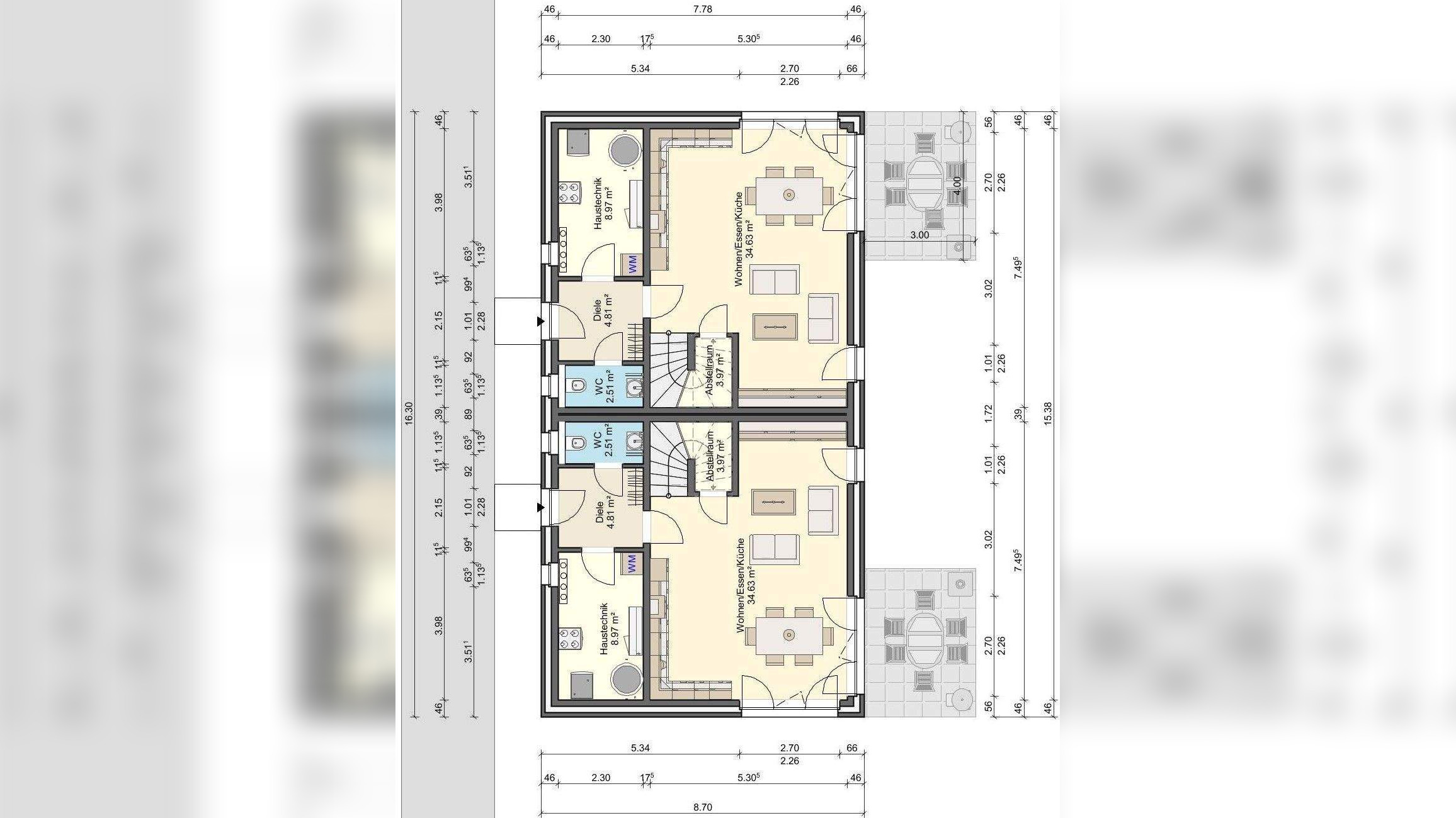
In Öjendorf entwickeln wir Ihr neues Zuhause. Das hier angebotene Grundstück hat eine Größe von ca. 232 m² mit einer Wohnfläche von ca. 110m² zuzüglich 15 m² Ausbaureserve im Spitzboden. Der Gesamtpreis DHH 1 beträgt € 611.400,- Das Grundstück kann von außerhalb angeschaut werden. Zur Begehung des Grundstücks ist ein Termin mit uns abzustimmen. Das Grundstück wird mit einer Maklercourtage in Höhe von 3,57% für die Deutsche Bank Immobilien angeboten. Da wir über Erfahrungen von mehr als 1.000 gebauten und übergebenen Häusern verfügen, können wir zusätzliche individuelle Ausstattungswünsche planen und für Sie umsetzen. Je früher Sie sich entscheiden, desto mehr Möglichkeiten haben Sie, Ihr neues Zuhause individuell zu gestalten.Ähnliche Angebote
So funktioniert es
- Alle neuen Anzeigen matchen wir kostenlos mit Deinen Suchparametern.
- Passende Angebote senden wir Dir in einer E-Mail pro Tag.
- Du kannst auch verschiedene Suchen anlegen und Dich jederzeit abmelden. Mehr dazu




