Objektdaten
Objektbeschreibung
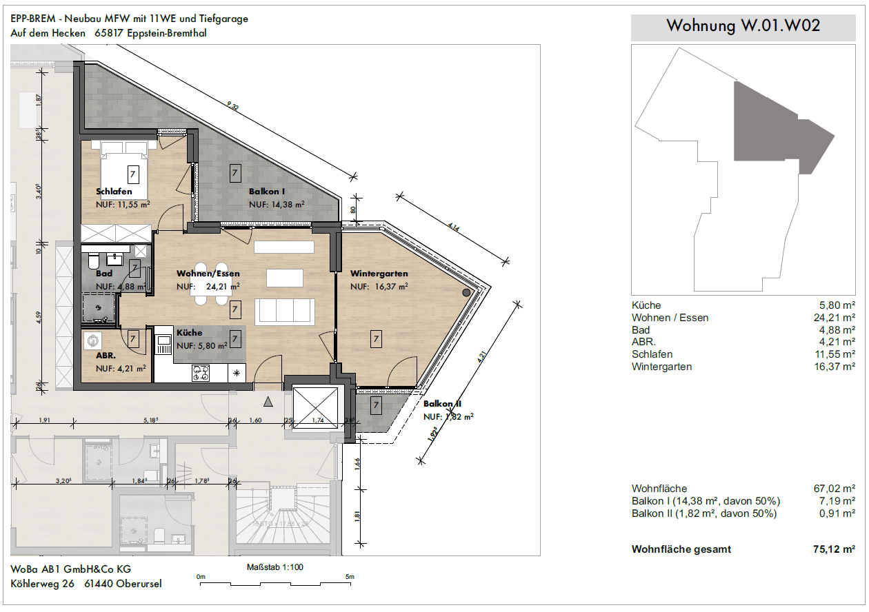
Diese attraktive Neubauwohnung im Obergeschoss vereint modernen Wohnkomfort mit einer durchdachten Raumaufteilung. Der großzügige Wohn- und Essbereich ist lichtdurchflutet und bietet direkten Zugang zu einem gemütlichen Wintergarten, der sich ideal als zusätzlicher Wohnraum, Pflanzenoase oder ruhiger Rückzugsort nutzen lässt. Ein angrenzender Balkon erweitert den Wohnkomfort nach draußen und lädt zu entspannten Stunden an der frischen Luft ein.Das separate Schlafzimmer bietet ausreichend Platz für individuelle Einrichtungsideen und sorgt für eine angenehme Privatsphäre. Das moderne Badezimmer überzeugt mit zeitgemäßer Ausstattung und stilvollen Materialien.Ein praktischer Abstellraum innerhalb der Wohnung sorgt für zusätzlichen Stauraum und macht die Flächennutzung besonders effizient. Die Wohnung befindet sich in einem gepflegten Neubau mit zeitgemäßer Energieeffizienz und bietet damit ein zukunftssicheres Wohnkonzept. Ideal für Singles, Paare oder alle, die eine hochwertige und ruhige Wohnatmosphäre schätzen.So funktioniert es
- Alle neuen Anzeigen matchen wir kostenlos mit Deinen Suchparametern.
- Passende Angebote senden wir Dir in einer E-Mail pro Tag.
- Du kannst auch verschiedene Suchen anlegen und Dich jederzeit abmelden. Mehr dazu




