Objektdaten
Objektbeschreibung
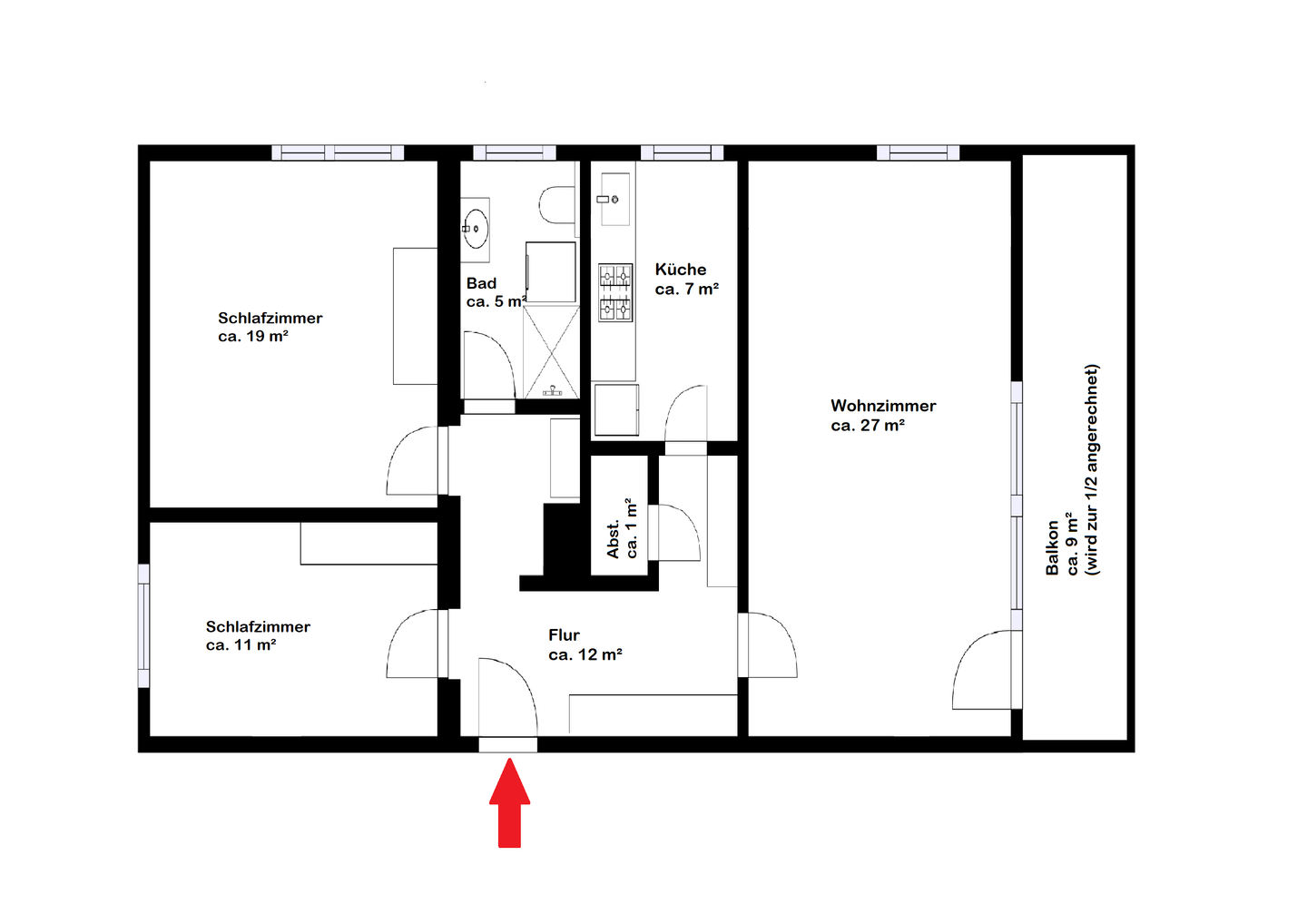
Die hier angebotene, großzügige 3-Zimmer-Wohnung befindet sich im Erdgeschoss eines gepflegten Mehrparteienhauses in Bremen-Huchting und umfasst ca. 88 m² Wohnfläche.Von dem zentralen Flur aus sind alle Zimmer begehbar. Die Wohnung verfügt über zwei Schlafzimmer, eine Küche sowie ein großzügiges Wohnzimmer mit Zugang zum südlich ausgerichteten Balkon, der einen Blick auf den schönen gemeinschaftlichen Garten bietet.Das Tageslichtbad verfügt über ein Fenster, eine Dusche und einen Anschluss für die Waschmaschine. Zusätzlich bietet die Wohnung einen praktischen Stauraum.Zur Einheit gehört außerdem ein ca. 9 m² großer Kellerraum. Ergänzend stehen der Hausgemeinschaft ein Fahrradraum sowie ein Waschraum zur gemeinschaftlichen Nutzung zur Verfügung.Ähnliche Angebote
So funktioniert es
- Alle neuen Anzeigen matchen wir kostenlos mit Deinen Suchparametern.
- Passende Angebote senden wir Dir in einer E-Mail pro Tag.
- Du kannst auch verschiedene Suchen anlegen und Dich jederzeit abmelden. Mehr dazu




