Objektdaten
Objektbeschreibung
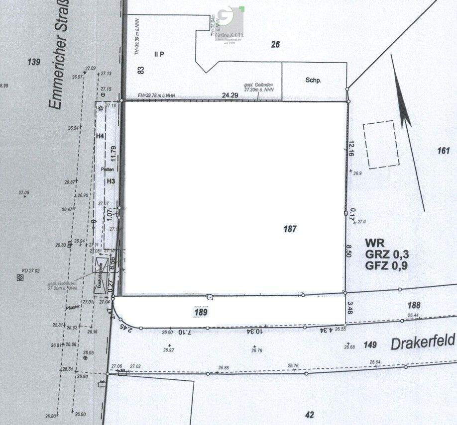
Bei diesem Grundstück handelt es sich um ein noch bebautes Grundstück in Duisburg Meiderich auf der Emmericher Straße 85. Es verfügt über eine Gesamtfläche von 604 m².Folgende Flurstücke sind dem angebotenen Grundstück zugeordnet:Gemarkung: MeiderichFlur: 70Flurstück: 187 mit 519 m²Flurstück: 189 mit 85 m²Das Aufstehende Gebäude wird aktuell nicht bewohnt und bietet daher mehrere Nutzungsmöglichkeiten des Grundstücks. Eine Sanierung des Altbestands sowie ein Abriss und neue Errichtung eines Wohnhauses wären realisierbar.Ähnliche Angebote
So funktioniert es
- Alle neuen Anzeigen matchen wir kostenlos mit Deinen Suchparametern.
- Passende Angebote senden wir Dir in einer E-Mail pro Tag.
- Du kannst auch verschiedene Suchen anlegen und Dich jederzeit abmelden. Mehr dazu



