Kaufpreis 105.000 €
Zimmer 6
Größe 150 m²
57610 Altenkirchen (Westerwald)
Objektdaten
Veröffentlicht am: 30. November 2025
Baujahr: 1900
Energieausweis: Liegt bei der Besichtigung vor
Danke! Bitte bestätige Deine E-Mail-Adresse – wir haben Dir soeben eine Mail geschickt.
Es gab ein Problem beim Absenden. Bitte versuche es erneut.
Bitte bestätige Deine E-Mail-Adresse, um Updates zu erhalten.
Objektbeschreibung
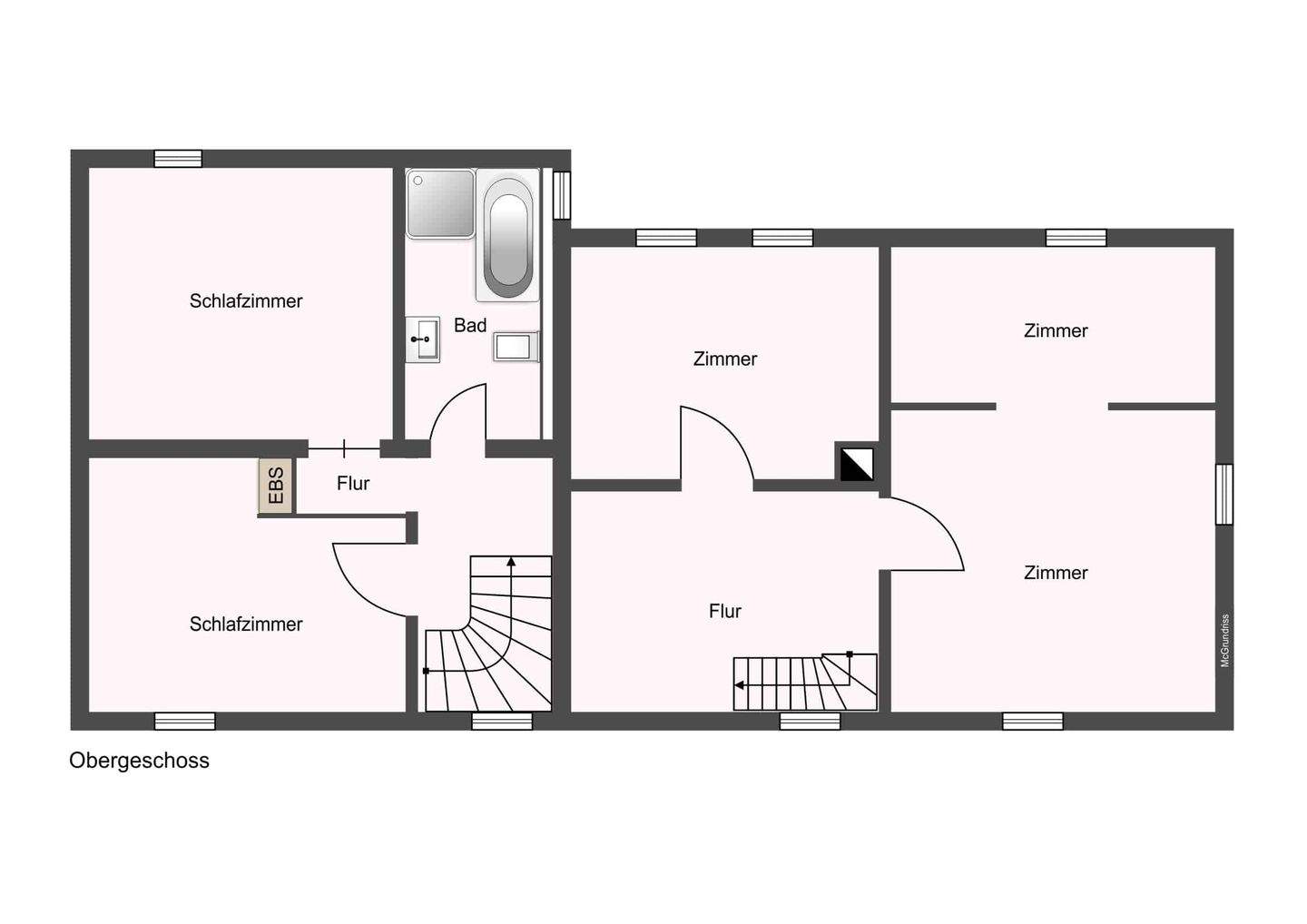
Ein teilvermietetes Doppelhaus mit angrenzendem Nebengebäude!Hervorzuheben ist insbesondere die Nähe zur Kreisstadt Altenkirchen. In wenigen Gehminuten erreichen Sie diverse Geschäfte des täglichen Bedarfs. Ursprünglich wurde das Wohnhaus um 1900 in Fachwerkbauweise errichtet und befindet sich seit vielen Jahren im Besitz der heutigen Eigentümer. In den letzten Jahren wurde das Haus ausschließlich für Vermietungszwecke genutzt und wird nun aus privaten Gründen veräußert. Insgesamt verfügt das Gebäude über ca. 150m² Wohnfläche, welche sich wie folgt aufteilt:- Linke Haushälfte (ca. 69m²): drei Zimmer, Küche, Gäste-WC, Badezimmer mit Dusche und Badewanne, Abstellraum - Rechte Haushälfte (ca. 81m²): drei Zimmer, ein Durchgangszimmer, Badezimmer, KücheDie linke Haushälfte ist seit 2018 vermietet mit einer jährlich vereinbarten Nettokaltmiete in Höhe von 5.160,00€. Sofern eine Eigennutzung gewünscht ist, können entsprechende Absprachen getroffen werden.Die rechte Haushälfte ist aktuell leerstehend und befindet sich in einem sanierungsbedürftigen Zustand. Ein separates Nebengebäude, welches ausreichend Fläche für PKW´s darstellt oder als Abstellfläche genutzt werden kann, rundet das Angebot ab. Zwischenzeitlich sind einige Gewerke in die Jahre gekommen, sodass diverse Modernisierungen/Renovierungen im Innen- sowie Außenbereich zu empfehlen wären. Baujahrsbedingt beträgt die Deckenhöhe teilweise um 1,90m. Zum Schutz der Mieter wurden keine Innenfotos erstellt. Das Doppelhaus kann, nach Absprache, kurzfristig übernommen werden.Gerne stellen wir Ihnen die Immobilie im Rahmen einer ausführlichen Besichtigung vor. Sprechen Sie uns an!
So funktioniert es
- Alle neuen Anzeigen matchen wir kostenlos mit Deinen Suchparametern.
- Passende Angebote senden wir Dir in einer E-Mail pro Tag.
- Du kannst auch verschiedene Suchen anlegen und Dich jederzeit abmelden. Mehr dazu
Wir haben soeben eine E-Mail mit Deinem Suchauftrag an Dich geschickt. – Klicke in dieser Mail auf den Bestätigungslink und schon geht's los. Prüfe ggf. auch Deinen Spamordner.
Es gab ein Problem beim Absenden Deiner E-Mail-Adresse. Bitte versuche es erneut.
WARNUNG: Bitte bestätige Deine E-Mail-Adresse, um regelmäßige Updates zu erhalten.