Objektdaten
Objektbeschreibung
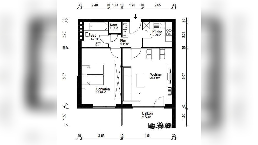
Diese gepflegte 2-Zimmer-Wohnung wurde vor Einzug der jetzigen Mieter renoviert und befindet sich in einem sehr gepflegten Zustand, Die Wohnung liegt im 2. Obergeschoss eines Mehrfamilienhauses mit insgesamt 16 Wohneinheiten. Der durchdachte Grundriss bietet eine gute Raumaufteilung.Das helle Wohnzimmer sowie das ruhig zum Innenhof gelegene Schlafzimmer sorgen für ein angenehmes Wohngefühl. Vom Wohnzimmer hat man Zugang zum ca. 7 m² großen Balkon mit Blick auf die belebte Straße.Die separate Küche ist mit einer einzeiligen, modernen Küchenzeile ausgestattet und bietet ausreichend Platz für eine praktische Nutzung. Das innenliegende Vollbad ist vor kurzem renoviert wurden. Zusätzlichen Stauraum bieten der praktische Abstellraum in der Wohnung sowie ein großzügiger Kellerraum.Ein weiterer Vorteil ist der zur Wohnung gehörende Tiefgaragenstellplatz sowie der zur Gemeinschaft gehörende Waschkeller und Trockenraum.Ähnliche Angebote
So funktioniert es
- Alle neuen Anzeigen matchen wir kostenlos mit Deinen Suchparametern.
- Passende Angebote senden wir Dir in einer E-Mail pro Tag.
- Du kannst auch verschiedene Suchen anlegen und Dich jederzeit abmelden. Mehr dazu




