Objektdaten
Objektbeschreibung
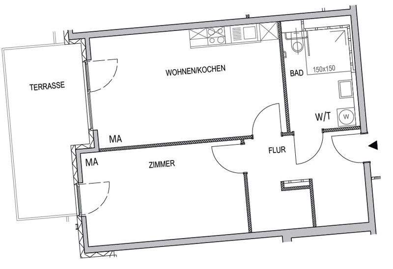
Die Wohnung befindet sich in einem gepflegten Mehrfamilienhaus mit Grünanlage. Ein Kellerabteil ist jeder Wohnung zugewiesen.Ähnliche Angebote
So funktioniert es
- Alle neuen Anzeigen matchen wir kostenlos mit Deinen Suchparametern.
- Passende Angebote senden wir Dir in einer E-Mail pro Tag.
- Du kannst auch verschiedene Suchen anlegen und Dich jederzeit abmelden. Mehr dazu





