Objektdaten
Objektbeschreibung
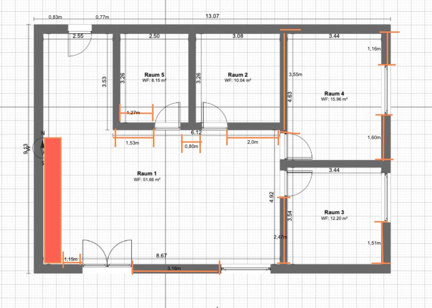
Willkommen in der charmanten und ruhigen Nachbarschaft Heiligenmühle, in der Stadt Leinburg (91227). Diese attraktive Wohnung im ersten Stock bietet Ihnen auf großzügigen 100 Quadratmetern drei helle Zimmer, wobei ein Durchgangszimmer auch noch vielfältig genutzt werden kann, sowie ein helles Bad. Genießen Sie die Ruhe und frische Luft auf Ihrem eigenen Balkon mit Blick ins Grüne oder entspannen Sie auf der weitläufigen Wiese. Parkplätze sind ebenfalls inklusive, was Ihnen zusätzlichen Komfort bietet. Die Küche kann gegen Ablöse übernommen werden. Die Haltestelle Leinburg Marktplatz ist nur 960 Meter entfernt, was Ihnen eine einfache Anbindung an die öffentlichen Verkehrsmittel sichert. Die Wohnung befindet sich an der Einfahrt zum Campingplatz Heiligenmühle, auf dem sich auch ein Restaurant, das Campingstüberl mit deutscher und griechischer Küche, befindet. Die Wohnung bietet Ihnen die perfekte Balance zwischen Ruhe und Erreichbarkeit. Verpassen Sie nicht die Gelegenheit, in diesem wunderbaren Zuhause zu wohnen. Kontaktieren Sie uns noch heute für einen Besichtigungstermin!So funktioniert es
- Alle neuen Anzeigen matchen wir kostenlos mit Deinen Suchparametern.
- Passende Angebote senden wir Dir in einer E-Mail pro Tag.
- Du kannst auch verschiedene Suchen anlegen und Dich jederzeit abmelden. Mehr dazu




