Objektdaten
Objektbeschreibung
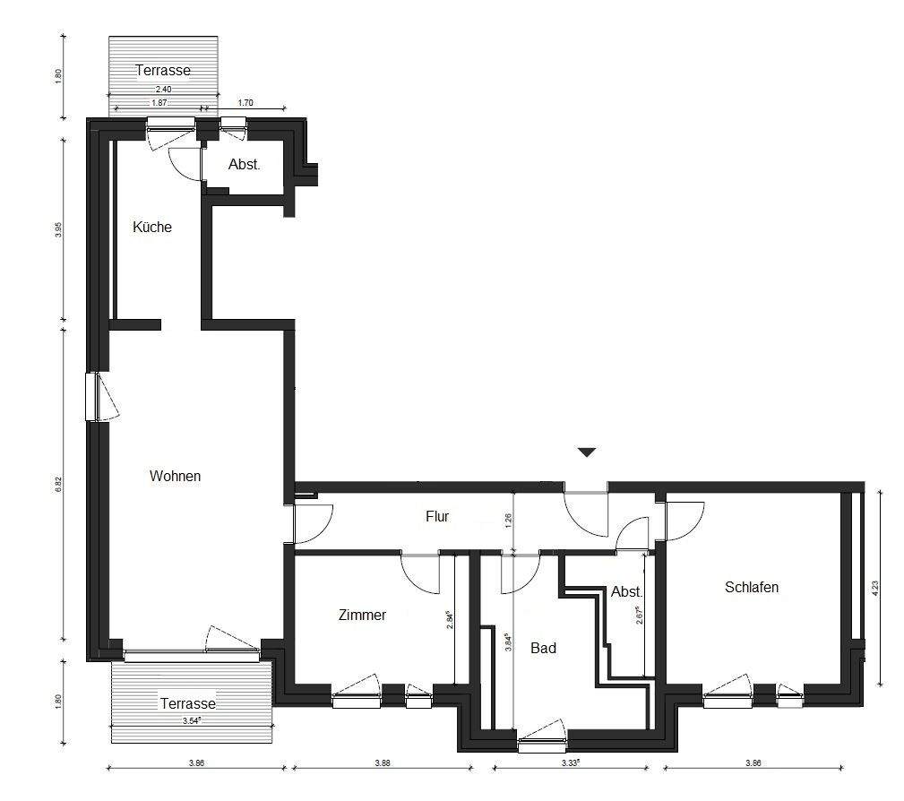
Wohnen am Prohner See - Ihr neues Zuhause wartet auf Sie!In der modernen Wohnresidenz "Am Prohner See" erwarten Sie neu sanierte, helle und barrierefreie Wohnungen. Jede Wohnung verfügt über Terrassen oder Balkone - genießen Sie entspannte Stunden mit Blick ins Grüne!- Erstbezug nach Sanierung- Wohnungsgrößen von 43 m² bis 122 m² - ideal für Singles, Paare und Familien - Lichtdurchflutete Räume und moderne Grundrisse - Barrierefreier Zugang in allen Wohnungen durch Aufzug - Grüne Außenanlage zur gemeinschaftlichen Nutzung - Eigener Parkplatz Der Einzug ist ab dem 01.02.2026 möglich.Ähnliche Angebote
So funktioniert es
- Alle neuen Anzeigen matchen wir kostenlos mit Deinen Suchparametern.
- Passende Angebote senden wir Dir in einer E-Mail pro Tag.
- Du kannst auch verschiedene Suchen anlegen und Dich jederzeit abmelden. Mehr dazu





