Objektdaten
Objektbeschreibung
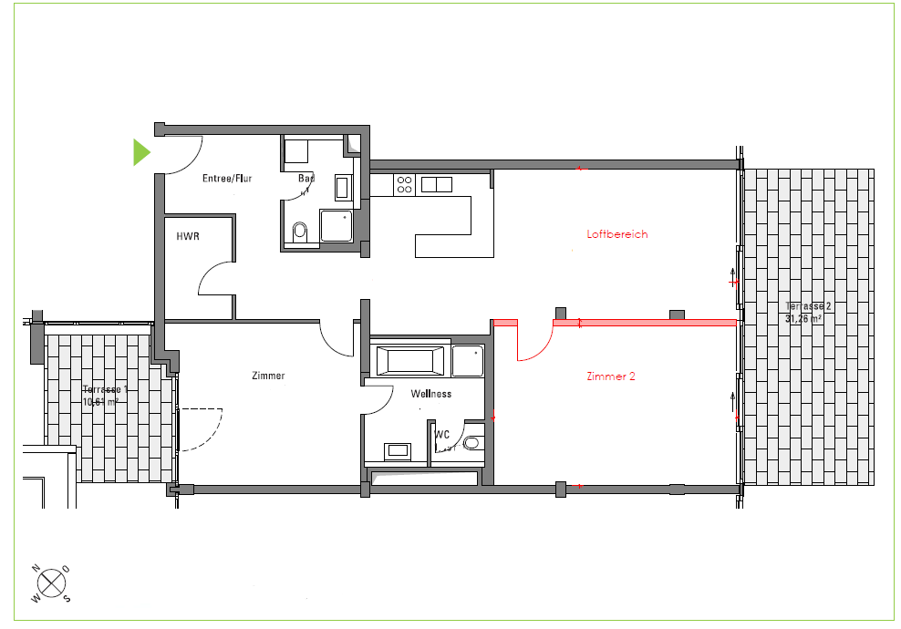
Diese attraktive 4-Zimmer Erdgeschosswohnung mit ca. 140 m² Wohnfläche über zwei Ebeben (EG und UG) befindet sich in Pulheim-Sinnersdorf. Die Wohnung verfügt über einen hellen großzügigen offenen Wohn-/Essbereich, drei Schlafzimmern und zwei Badezimmern. In alle Wohnräume befindet sich pflegeleichter Vinylboden. Die Beheizung der Wohnung erfolgt über Fußbodenheizung. Mittels Durchlauferhitzer erfolgt die Warmwasseraufbereitung Die Außenterasse grenzt an den offenen Wohnbereich an. Ein eigener Autoaußenstellplatz ist ebenfalls vorhanden. Die Wohnung wird ab dem 15.01.2026 verfügbar sein. Haustiere sind nicht erwünscht.So funktioniert es
- Alle neuen Anzeigen matchen wir kostenlos mit Deinen Suchparametern.
- Passende Angebote senden wir Dir in einer E-Mail pro Tag.
- Du kannst auch verschiedene Suchen anlegen und Dich jederzeit abmelden. Mehr dazu





