Objektdaten
Objektbeschreibung
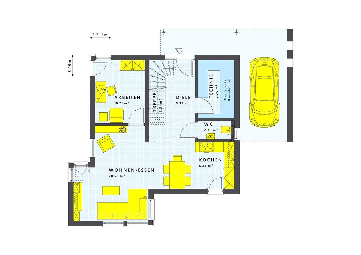
Sie kennen den schönen Weinort Hochheim? Und kennen die Hochheimer Südstadt an den Weinbergen? Mit direkter-S-Bahn-Nähe? Sie suchen ein sehr gepflegtes Zuhause für sich und Ihre kleine Familie? Einziehen ohne große Renovierungen wäre perfekt für Sie? Es handelt sich zwar um eine Doppelhaushälfte - vom Wohngefühl ist es aber eher ein Einfamilienhaus. Ein herrlich, schöner, pflegeleichter Garten (mit Mähroboter und Bewässerungssystem ausgestattet) und relativ groß .... bietet Ihnen genügend Abstand zum Nachbarn etc. (Ideal auch für Kinder und Haustiere). Idealerweise sind Sie 2-4 Personen (es gibt 3 Schlafzimmer). Gepflegter Keller vorhanden - jedoch nicht zu Wohnzwecken nutzbar. Eine Garage gehört auch dazu. Wenn dies Ihren Wünschen und Vorstellungen entspricht, rufen Sie gerne an oder schicken uns eine Mail.So funktioniert es
- Alle neuen Anzeigen matchen wir kostenlos mit Deinen Suchparametern.
- Passende Angebote senden wir Dir in einer E-Mail pro Tag.
- Du kannst auch verschiedene Suchen anlegen und Dich jederzeit abmelden. Mehr dazu




