Objektdaten
Objektbeschreibung
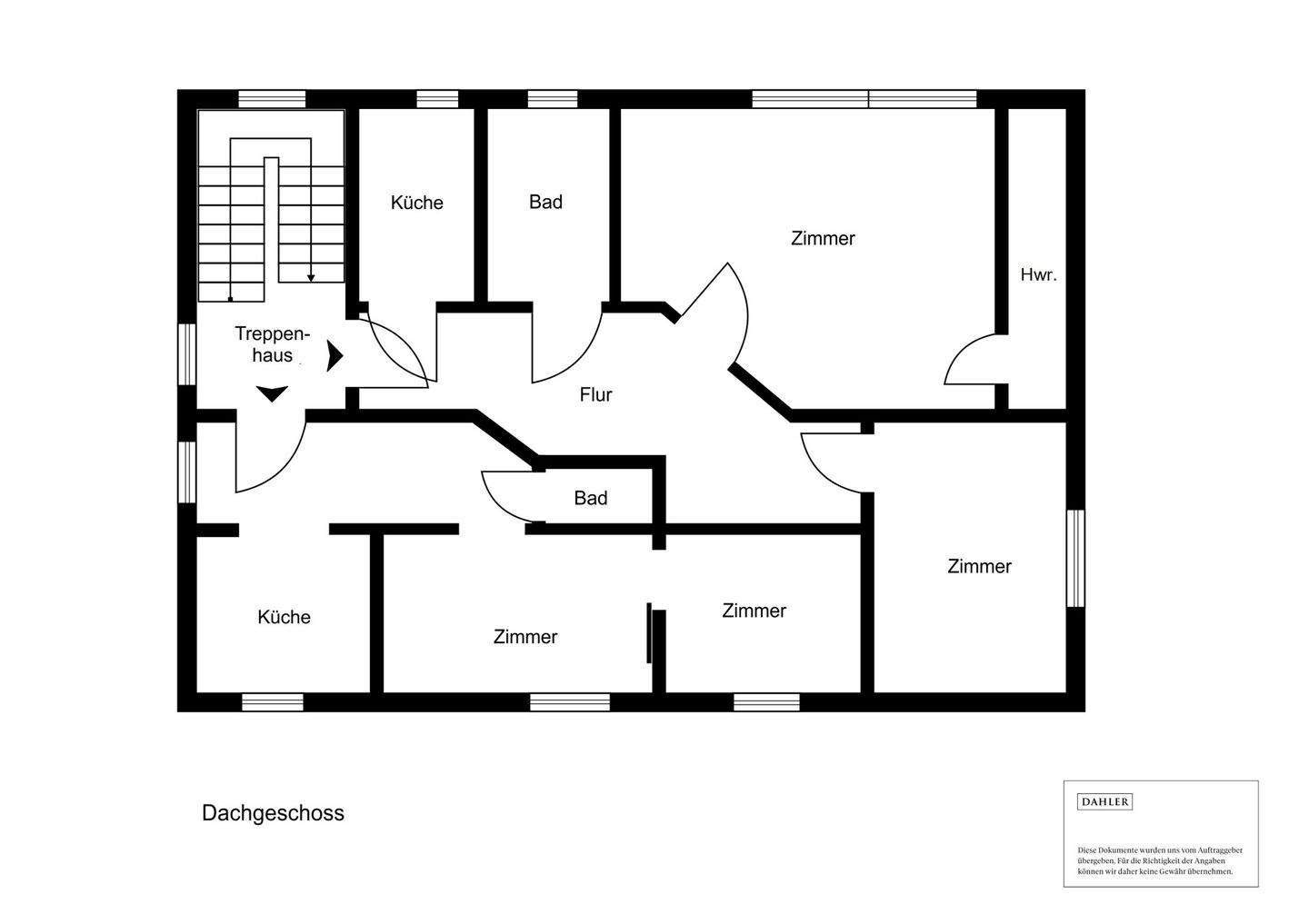
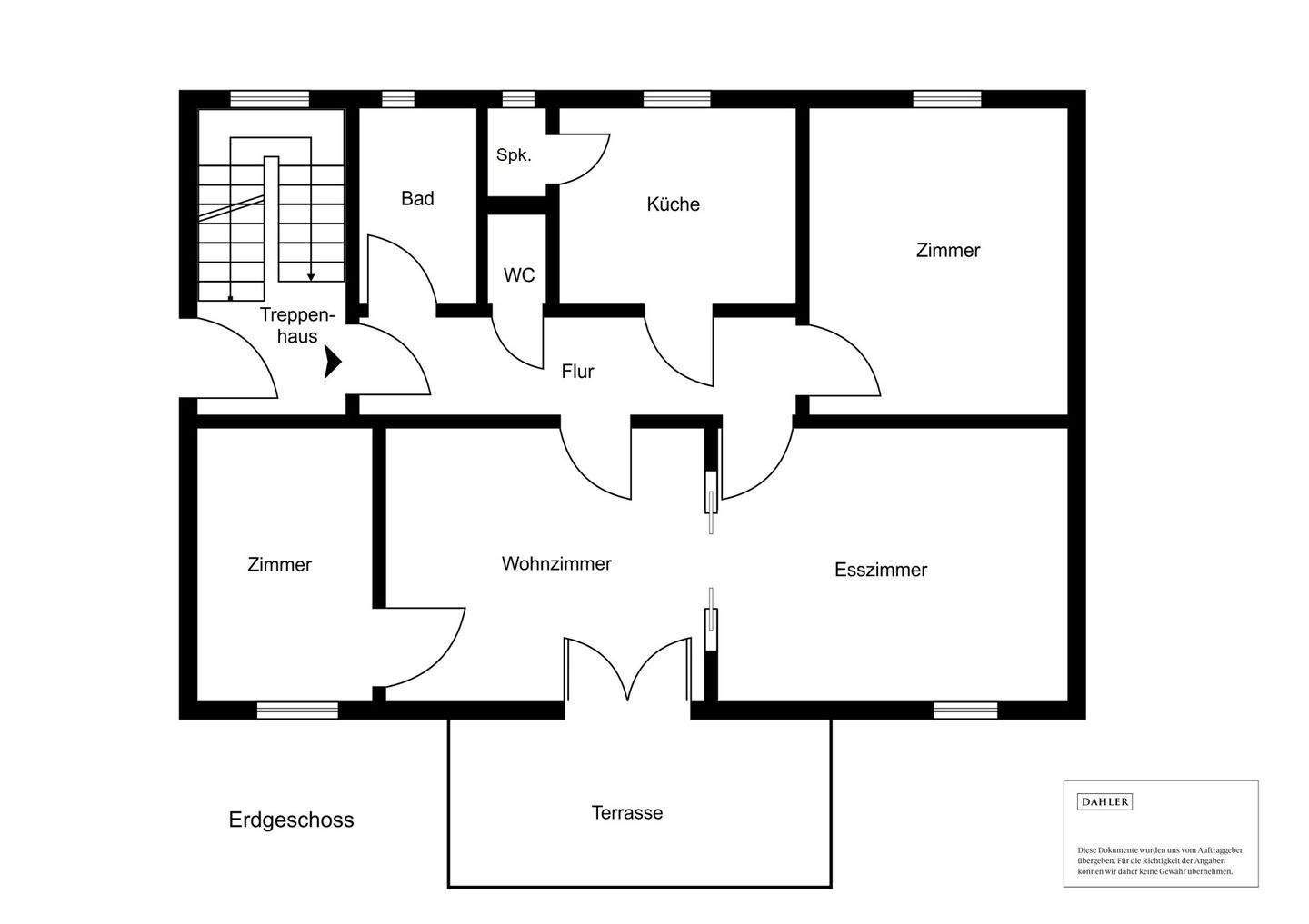
- Historisches Mehrfamilien aus dem Jahr 1922 mit einzigartigem Charakter- Gesamtwohnfläche von ca. 270 m², Grundstücksgröße von ca. 939 m²- Vier Wohneinheiten, zentral über ein Treppenhaus erreichbar- Vollkeller mit Zugang zum Garten und zusätzlicher Nutzfläche- Großzügige und intelligente Grundrisse der einzelnen Wohnungen- Balkone und Terrassen zu den Erdgeschoss- und Obergeschosswohnungen- Charmante Stilelemente aus den Baujahren in den oberen Etagen- Geräumiger, rückwärtig eingewachsener Garten mit viel Gestaltungspotenzial- Ideal für Kapitalanleger oder zur Eigennutzung, individuelles GestaltungspotenzialÄhnliche Angebote
So funktioniert es
- Alle neuen Anzeigen matchen wir kostenlos mit Deinen Suchparametern.
- Passende Angebote senden wir Dir in einer E-Mail pro Tag.
- Du kannst auch verschiedene Suchen anlegen und Dich jederzeit abmelden. Mehr dazu




