Objektdaten
Objektbeschreibung
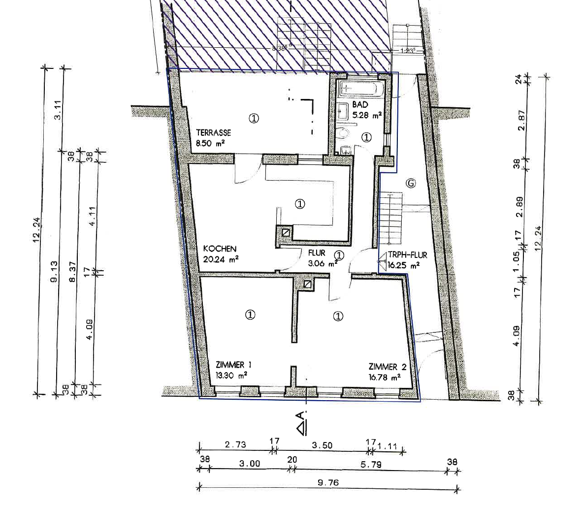
Die angebotene Wohnimmobilie aus dem Baujahr 1908 befindet sich in einem gepflegten Zustand im Ortsteil von LU-Mundenheim und besteht aus nur 3 Wohneinheiten.Die 2,5 ZKB-Wohnung befindet sich im Erdgeschoss, steht leer und wurde 2024 renoviert. Zur Wohnung gehört weiterhin eine Terrasse und ein Badezimmer mit Tageslichtbad und Badewanne.Die Gaszentralheizung ist aus dem Jahr 2015.Im Keller befinden sich 2 Kellerräume, welche zur Wohnung gehören.Ggf. kann ein Stück Gartenfläche hinter dem Haus mit dazu erworben werden.Ähnliche Angebote
So funktioniert es
- Alle neuen Anzeigen matchen wir kostenlos mit Deinen Suchparametern.
- Passende Angebote senden wir Dir in einer E-Mail pro Tag.
- Du kannst auch verschiedene Suchen anlegen und Dich jederzeit abmelden. Mehr dazu




