Grundstück zur Bebauung eines Rückgebäudes mit 3 Apartments im zentral gelegenen Rennweg, Nürnberg

Kaufpreis 184.000 €
Zimmer 1
90489 Nürnberg

Objektdaten

Veröffentlicht am: 7. Dezember 2025
Frei ab: 3. Dezember 2025
  • Objektbeschreibung

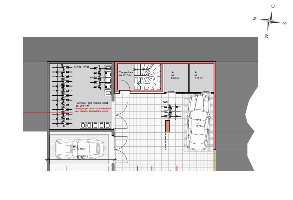
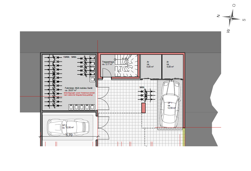
    Diese zum Bau angebotene, ca. 106 m² große Grundstücksfläche befindet sich im Hofbereich eines ca. 1946 in Massivbauweise errichteten, gepflegten Mehrfamilienhauses im Stadtteil Rennweg in Nürnberg. Die entsprechenden Pläne sind bereits genehmigt und können auch so umgesetzt werden.Der erstellte Plan für die Bebauung des 3-Parteien-Hauses auf ca. 78 m² bietet eine exemplarische Wohnfläche von ca. 130 m², welche auf 2 Wohnungen mit je einem Balkon im 1. OG und eine Loft-Wohnung mit Terrasse und Balkon im 2. OG verteilt sind. Des Weiteren ist eine ca. 28 m² große Lagerfläche geplant, die sich toll für Fahrradabstellplätze und auch mit zusätzlichen Ladestationen für E-Fahrräder ausgestattet werden kann.Ein möglicher Schnitt könnte wie folgt sein:Apartment 1 (ca. 26,2 m²):Im ruhigen Hofbereich des Haupthauses angekommen, gelangt man geradeaus zum Eingang des zu erbauenden Rückgebäudes und über das Treppenhaus ins 1. OG. Oben angekommen verfügt das erste Appartement zu Ihrer Rechten über einen ca. 17,5 m² großen Wohn- und Schlafbereich mit Kochzeile, ein ca. 5,5 m² großes Bad sowie einen ca. 6,3 m² großen West-Balkon.Apartment 2 (ca. 40,3 m²):Gegenüber befindet sich das zweite Apartment, welches über einen ca. 29,8 m² großen Wohn- und Schlafbereich mit Kochzeile, ein ca. 5,5 m² großes Bad sowie einen ca. 9,8 m² großen West-Balkon verfügt..Apartment 3 (ca. 63,5 m²):Im 2. OG befindet sich die exklusive, offen gestaltete Wohnung mit Loft-Charakter - sowohl mit Balkon als auch Terrasse.Ein Highlight der Wohnung ist der großzügig geschnittene Wohn-, Ess- und Kochbereich mit einer Gesamtfläche von ca. 28,3 m² sowie eine ca. 17,4 m² große West-Terrasse. Das geräumige Bad verfügt über ca. 7,2 m² und bietet tolle Gestaltungsmöglichkeiten - ob mit begehbarer Dusche oder einer Badewanne. Das offene Raumkonzept ermöglicht vielseitige Nutzungsmöglichkeiten und schafft eine angenehme Weite. Der ca. 14,4 m² große Schlafbereich kann offen, jedoch trotzdem diskret gestaltet werden, sodass eine Separierung zum Wohnbereich gewährleistet ist. Die Möglichkeit vom Schlafbereich auf den ca. 9,8 m² großen West-Balkon zu gelangen, rundet das Gesamtpaket ab.Auf dem Dach kann bequem eine Wärmepumpe mit Photovoltaik installiert werden, sodass der neuste Standard gewährleistet ist und energetische Anforderungen erfüllt sind.Im Erdgeschoss entsteht ein gemeinschaftlicher, ca. 30 m² großer Fahrrad- und Müllraum. Bei der genehmigten Planung sind zudem zwei Abstellräume mit einer Fläche von jeweils ca. 5,1 m², Fahrradabstellmöglichkeiten sowie ein KFZ-Stellplatz berücksichtigt worden.Gerne stehen wir Ihnen für eine Besichtigung zur Verfügung und freuen uns darauf, Ihnen dieses tolle Bauprojekt persönlich zu präsentieren.
    Nach oben scrollen