Kaufpreis 192.500 €
Zimmer 2
Größe 59 m²
21509 Glinde
Objektdaten
Veröffentlicht am: 7. Dezember 2025
Baujahr: 1972
Energieausweis: Liegt bei der Besichtigung vor
Danke! Bitte bestätige Deine E-Mail-Adresse – wir haben Dir soeben eine Mail geschickt.
Es gab ein Problem beim Absenden. Bitte versuche es erneut.
Bitte bestätige Deine E-Mail-Adresse, um Updates zu erhalten.
Objektbeschreibung
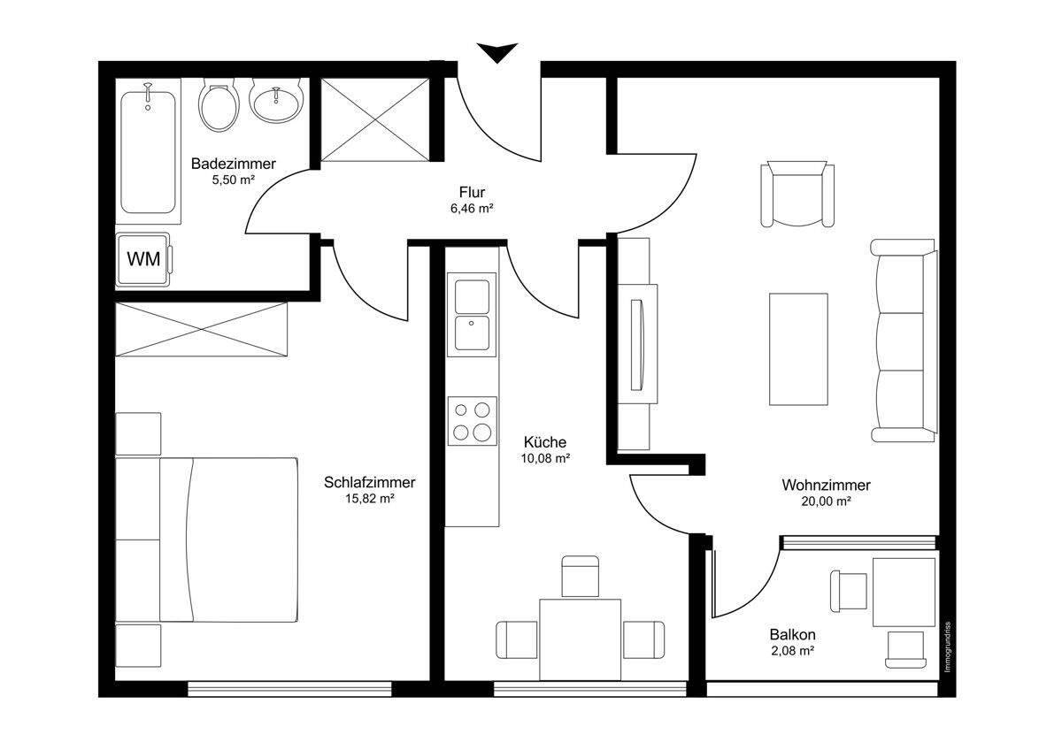
Die Wohnung befindet sich im fünften Obergeschoss eines gepflegten Wohnkomplexes mit insgesamt 189 Einheiten. Ein Personenaufzug ermöglicht einen komfortablen Zugang bis zur Wohnebene. Zum Sondereigentum gehört ein eigenes Kellerabteil; der Miteigentumsanteil beträgt 49/10.000.Die Zwei-Zimmer-Wohnung verfügt über eine Wohnfläche von rund 59,94 m² und überzeugt durch eine klare Grundrissgestaltung sowie mehrere Modernisierungen der vergangenen Jahre. Der Wohnbereich bietet Zugang zu einem Balkon, dessen Tür- und Fensterelement im Jahr 2022 erneuert wurde. Auch die übrigen Fenster sind in zweifach verglaster Kunststoffausführung vorhanden und befinden sich in einem gepflegten Zustand.Im Innenbereich wurden wesentliche Ausstattungsdetails überarbeitet. Die Innentüren und Zargen wurden im Jahr 2020 erneuert, ebenso wurde das Badezimmer im selben Jahr umfassend kernsaniert. Der Wohn- und Schlafbereich ist mit einem hochwertigen Vinylboden ausgestattet, der sich durch Strapazierfähigkeit und Pflegeleichtigkeit auszeichnet.Auch die technische Ausstattung wurde verbessert. Ein neuer Elektrosicherungskasten wurde installiert, und Teile der elektrischen Leitungen wurden im Zuge der Modernisierung erneuert.Insgesamt bietet die Wohnung eine solide und zeitgemäß modernisierte Ausstattung innerhalb eines geordneten Wohnumfelds. Sie eignet sich sowohl zur Eigennutzung als auch als Kapitalanlage, da sie eine überzeugende Kombination aus guter Wohnqualität, strukturiertem Gemeinschaftseigentum und einem praktikablen Grundriss bietet.Die monatliche Hausgeldvorauszahlung beträgt 362 Euro, davon entfallen etwa 62 Euro auf die Erhaltungsrücklage.
So funktioniert es
- Alle neuen Anzeigen matchen wir kostenlos mit Deinen Suchparametern.
- Passende Angebote senden wir Dir in einer E-Mail pro Tag.
- Du kannst auch verschiedene Suchen anlegen und Dich jederzeit abmelden. Mehr dazu
Wir haben soeben eine E-Mail mit Deinem Suchauftrag an Dich geschickt. – Klicke in dieser Mail auf den Bestätigungslink und schon geht's los. Prüfe ggf. auch Deinen Spamordner.
Es gab ein Problem beim Absenden Deiner E-Mail-Adresse. Bitte versuche es erneut.
WARNUNG: Bitte bestätige Deine E-Mail-Adresse, um regelmäßige Updates zu erhalten.