Objektdaten
Objektbeschreibung
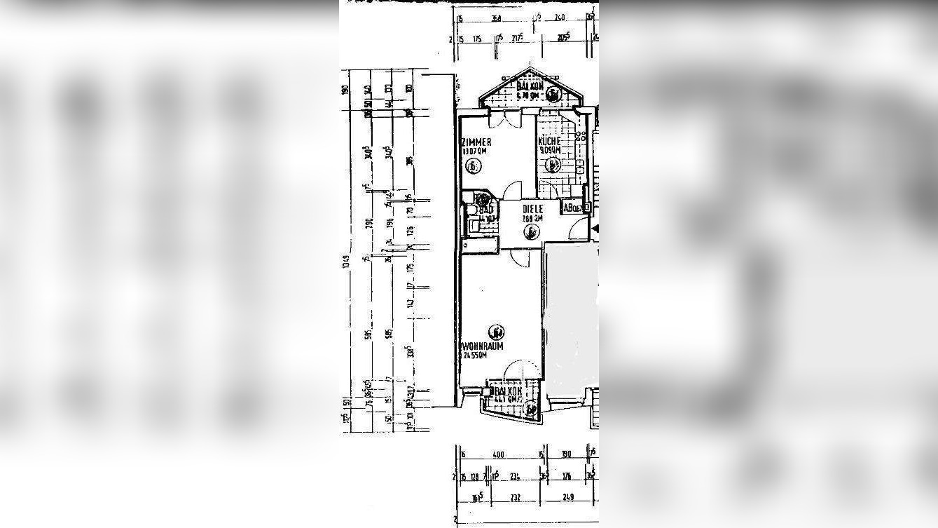
Diese sofort bezugsfreie 3-Zimmer-Wohnung überzeugt durch ihre durchdachte Raumaufteilung und eine attraktive Kombination aus Wohnkomfort und Potenzial. Auf ca. 70 m² Wohnfläche erwartet Sie ein einladendes Zuhause, das sowohl zur Eigennutzung als auch als Kapitalanlage geeignet ist.Ein besonderes Highlight ist der schöne Balkon mit Westausrichtung, der zum Entspannen und Verweilen einlädt. Hier genießen Sie in den Nachmittags- und Abendstunden sonnige Momente im Freien. Die Wohnung verfügt über eine praktische Einbauküche, die funktional gestaltet ist und ausreichend Platz für kulinarische Aktivitäten bietet. Das angrenzende Wannenbad ist mit einem Handtuchheizkörper ausgestattet und sorgt für zusätzlichen Komfort.Eine Besonderheit dieser Wohnung ist die Möglichkeit zum Umbau in eine 4-Zimmer-Wohnung. Durch die Schaffung einer Wohnküche lässt sich der Grundriss effizient an individuelle Wohnbedürfnisse anpassen und der vorhandene Raum optimal nutzen. Ergänzt wird das Angebot durch ein eigenes Kellerabteil, das praktischen Stauraum für Haushalts- und Freizeitutensilien bietet. Die sehr gute infrastrukturelle Anbindung ermöglicht eine schnelle Erreichbarkeit von Einkaufsmöglichkeiten, öffentlichem Nahverkehr und weiteren Einrichtungen des täglichen Bedarfs.Wir lassen Ihnen gern das vollständige Exposé mit einem 3D-Rundgang und der Lage der Immobilie zukommen! Bitte halten Sie bei einer Anfrage auch im Spam-Ordner Ihres E-Mail-Postfaches nach dem interaktiven Exposé zur Immobilie Ausschau.Ähnliche Angebote
So funktioniert es
- Alle neuen Anzeigen matchen wir kostenlos mit Deinen Suchparametern.
- Passende Angebote senden wir Dir in einer E-Mail pro Tag.
- Du kannst auch verschiedene Suchen anlegen und Dich jederzeit abmelden. Mehr dazu




