Objektdaten
Objektbeschreibung
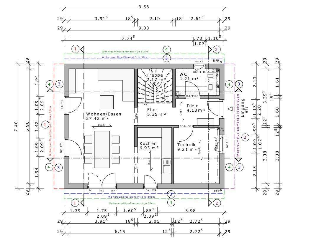
Eingebettet in ein hochwertig angelegtes Grundstück, vermittelt das 2004 erbaute Einfamilienhaus zeitlose Eleganz. Schon im Eingangsbereich zeigt sich die optimale Verbindung von Charme und Funktionalität. Der etwa 32 m² große Wohnbereich mit Lichterker und fließendem Übergang auf die Süd-West Terrasse dominiert das Erdgeschoss. Unbedingt erwähnenswert ist die etwa 14 m² große Küche mit Zugang auf das gepflegte Grundstück. Ein Hauswirtschaftsraum mit Platz für die Viessmann Gastherme und das Gäste-WC mit Dusche komplettieren das ansprechende Gesamtbild im Erdgeschoss. Angekommen im Obergeschoß erwarten Sie drei nahezu gleich große familiengerechte Zimmer. Ein optisch ansprechendes Wannenbad vervollständigt das überzeugende Raumkonzept. Zusätzliche Abstellmöglichkeiten bieten sich im Spitzboden. Nicht unerwähnt bleiben darf das liebevoll angelegte Grundstück mit großem beheizbarem Pool. Die überdachte Sonnenterrasse mit geschmackvoller Randbepflanzung fällt sofort ins Auge. Der große Carport sowie die gepflasterten Flächen am Hauseingang prägen die Optik und wirken gut durchdacht. Eine moderne Zaunanlage mit straßenbegleitend hoher Hecke sichert ein Höchstmaß an Privatsphäre. In der Gesamtbetrachtung erwartet Sie ein familiengerechtes Domizil mit viel Raum für die Gestaltung individueller Lebensmodelle.Ähnliche Angebote
So funktioniert es
- Alle neuen Anzeigen matchen wir kostenlos mit Deinen Suchparametern.
- Passende Angebote senden wir Dir in einer E-Mail pro Tag.
- Du kannst auch verschiedene Suchen anlegen und Dich jederzeit abmelden. Mehr dazu




