Kaufpreis 700.000 €
Zimmer 7
Größe 240 m²
21391 Reppenstedt
Objektdaten
Veröffentlicht am: 8. Dezember 2025
Energieausweis: Liegt bei der Besichtigung vor
Danke! Bitte bestätige Deine E-Mail-Adresse – wir haben Dir soeben eine Mail geschickt.
Es gab ein Problem beim Absenden. Bitte versuche es erneut.
Bitte bestätige Deine E-Mail-Adresse, um Updates zu erhalten.
Objektbeschreibung
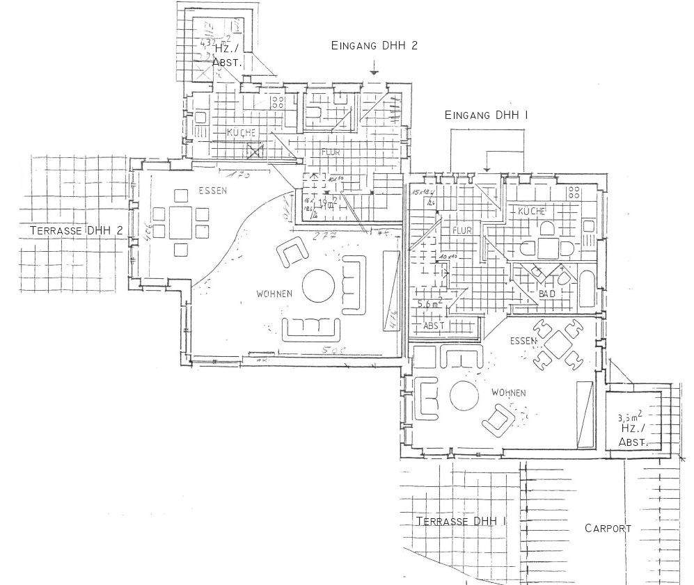
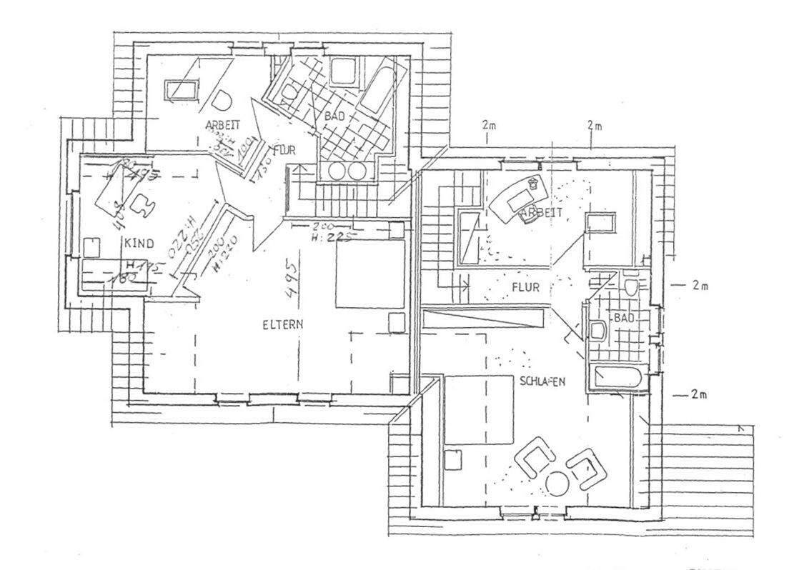
Dieses gepflegte Doppelhaus aus dem Jahr 1993 liegt in herrlich ruhiger Waldrandlage und bietet mit zwei separaten Wohneinheiten auf ca. 100?m² und ca. 140?m² vielfältige Nutzungsmöglichkeiten - ideal für Familien, Mehrgenerationenwohnen oder zur Kombination von Eigennutzung und Vermietung.Die Immobilie wurde teilweise modernisiert und präsentiert sich in einem guten Zustand. Beide Haushälften verfügen über separate Eingänge und durchdachte Grundrisse. Die Wohnbereiche verfügen jeweils über einen Zugang zur Terrasse und Blick ins Grüne. Große Fensterflächen sorgen für viel Licht und ein angenehmes Wohnklima.Besondere Highlights:- Ruhige Lage direkt am Waldrand - Naturgenuss pur- Zwei Wohneinheiten mit ca. 100?m² und ca. 140?m² Wohnfläche- Die größere Einheit ist teilweise modernisiert (Böden und Bäder)- Helle, großzügige Räume mit wohnfreundlichen Grundrissen- Terrassen* mit Ausrichtung ins Grüne- Gartenbereich mit viel Potenzial zur individuellen Gestaltung- 2 Carportstellplätze (zzgl. je 8.000,00 €) sowie 2 Außenstellplätze (zzgl. je 4.000,00 €)Die Umgebung besticht durch ihre naturnahe Lage und bietet gleichzeitig eine gute Anbindung an Reppenstedt und Lüneburg. Dieses Doppelhaus vereint Wohnkomfort, Flexibilität und Naturverbundenheit - ein echtes Zuhause mit Mehrwert.* Die Terrassen sind mit einem Viertel ihrer Grundfläche auf die Wohnfläche angerechnet.
So funktioniert es
- Alle neuen Anzeigen matchen wir kostenlos mit Deinen Suchparametern.
- Passende Angebote senden wir Dir in einer E-Mail pro Tag.
- Du kannst auch verschiedene Suchen anlegen und Dich jederzeit abmelden. Mehr dazu
Wir haben soeben eine E-Mail mit Deinem Suchauftrag an Dich geschickt. – Klicke in dieser Mail auf den Bestätigungslink und schon geht's los. Prüfe ggf. auch Deinen Spamordner.
Es gab ein Problem beim Absenden Deiner E-Mail-Adresse. Bitte versuche es erneut.
WARNUNG: Bitte bestätige Deine E-Mail-Adresse, um regelmäßige Updates zu erhalten.