Objektdaten
Objektbeschreibung
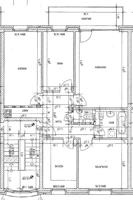
Objektbeschreibung Diese Wohnung verfügt über eine Wohnfläche von 96,59 m² und wurde aktuelle in 2025 renoviert.Die Wohnung umfasst 3 Zimmer, Küche, Vollbad mit Badewanne und Fenster, sep. WC, Diele und Terrasse.Zu der Wohnung gehört ein 16 m² großer Kellerraum und ein 30 m² großer Dachboden.Das Wohnzimmer ist mit einem Parkettboden ausgestattet. Die anderen Zimmer und der Dielenbereich wurden mit einem neuen Laminatboden ausgestattet.Küche, Badezimmer und WC wurden neu gefliest.Die Küche ist mit einer Einbauküche der Vormieterin (Baujahr 2025) ausgestattet.Der Restwert der Küche beträgt € 7.500,00. Die Beheizung erfolgt über eine Gaszentralheizung (Baujahr 2011). Die Warmwasserversorgung erfolgt elektronisch. Raumaufteilung siehe Grundriss.Ähnliche Angebote
So funktioniert es
- Alle neuen Anzeigen matchen wir kostenlos mit Deinen Suchparametern.
- Passende Angebote senden wir Dir in einer E-Mail pro Tag.
- Du kannst auch verschiedene Suchen anlegen und Dich jederzeit abmelden. Mehr dazu





