Objektdaten
Objektbeschreibung
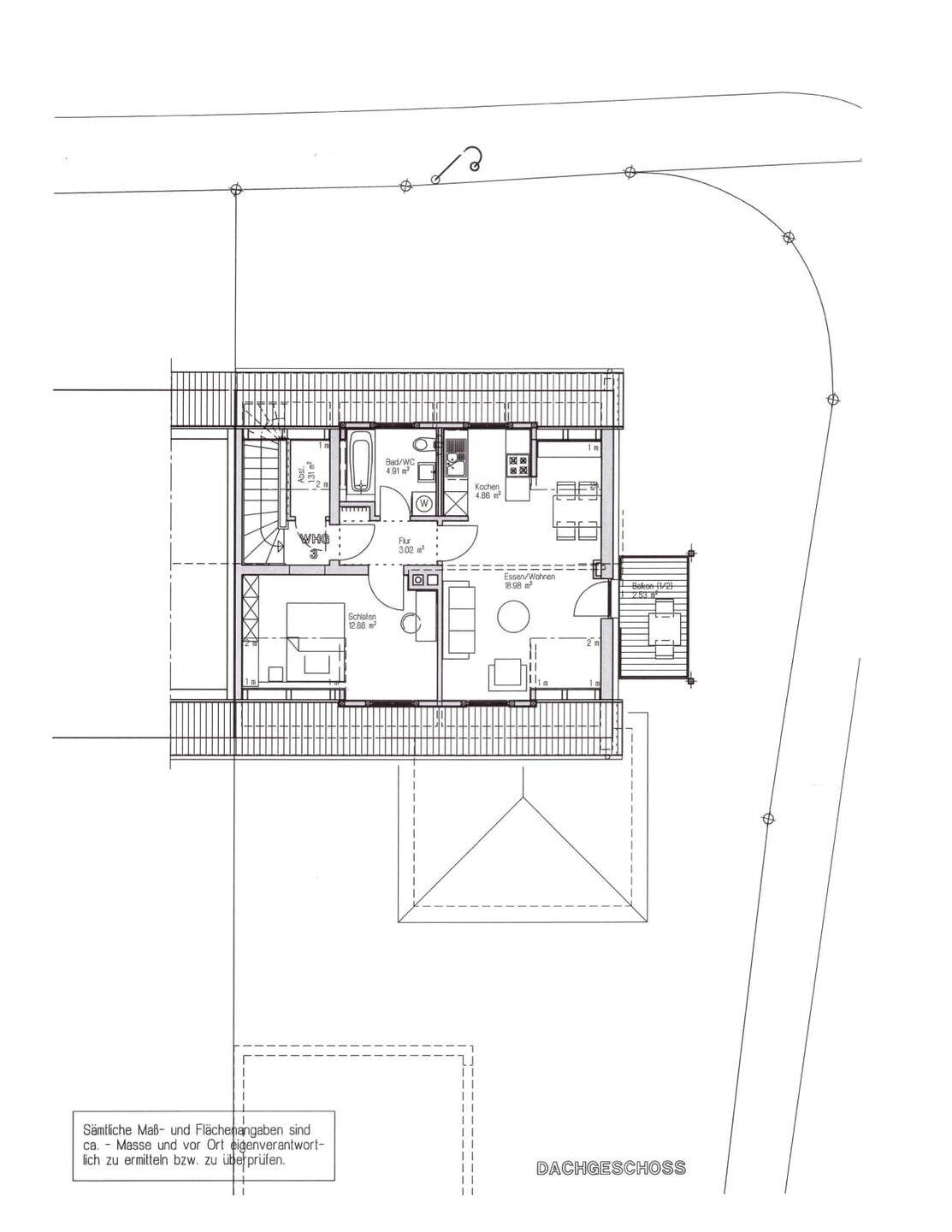
Helle Dachgeschosswohnung Haus wurde in den 1950ern wiederaufgebaut. Dachgeschosswohnung wurde erst 1992 ausgebaut. Kein Aufzug im Haus Alle Fenster wurden vor 2 Jahren erneuert. Ruhige Lage, gleich neben dem Stadtpark Nähe zur U-Bahnstation Maxfeld (ca. 550 m)Ähnliche Angebote
So funktioniert es
- Alle neuen Anzeigen matchen wir kostenlos mit Deinen Suchparametern.
- Passende Angebote senden wir Dir in einer E-Mail pro Tag.
- Du kannst auch verschiedene Suchen anlegen und Dich jederzeit abmelden. Mehr dazu





