*Altbau mit verschiedenen Nutzungsmöglichkeiten*

Kaufpreis 300.000 €
Zimmer 10
Größe 500 m²
25938 Utersum

Objektdaten

Veröffentlicht am: 12. Dezember 2025
Energieausweis: Liegt bei der Besichtigung vor
  • Objektbeschreibung

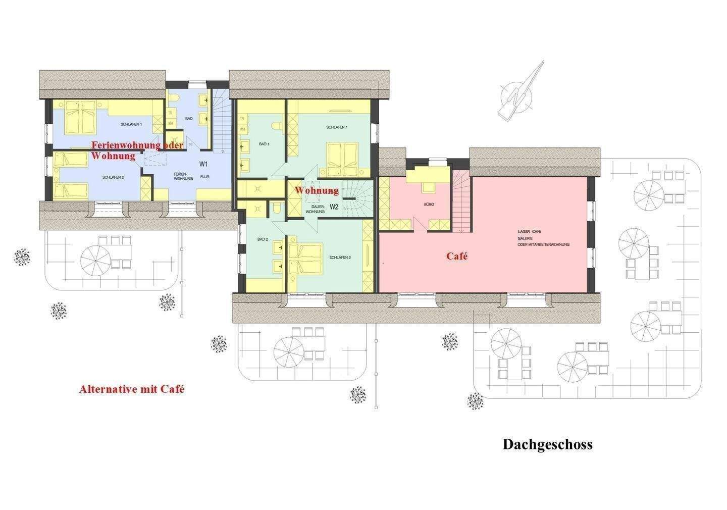
    Beispiel für einen UmbauAufteilung der Wohnung 1( 131,91 m²): im Erdgeschoss befinden sich ein großes Wohnzimmer mit integrierter Küche, Essraum, Abstellraum, Bad und ein Flur.Im Dachgeschoss befinden sich zwei Schlafzimmer mit Bad en Suite, sowie ein Abstellraum im Spitzbodengeschoss.Aufteilung der Wohnung 2( 193,32 m²): im Erdgeschoss befinden sich ein großes Wohnzimmer mit integrierter Küche und einem Essplatz, Schlafzimmer, Bad und ein Flur.Im Dachgeschoss befinden sich zwei Schlafzimmer und ein Bad, sowie ein Abstellraum im Spitzbodengeschoss.Aufteilung der Ferienwohnung(184,02 m²): im Erdgeschoss befinden sich ein Wohn-Essraum mit integrierter Küche, Bad, Schlafzimmer und ein Flur.Im Dachgeschoss befinden sich zwei Schlafzimmer mit Bad en Suite und ein Flur, sowie ein Abstellraum im Spitzbodengeschoss.
    Nach oben scrollen