Kaufpreis 380.000 €
26826 Weener
Objektdaten
Veröffentlicht am: 13. Dezember 2025
Danke! Bitte bestätige Deine E-Mail-Adresse – wir haben Dir soeben eine Mail geschickt.
Es gab ein Problem beim Absenden. Bitte versuche es erneut.
Bitte bestätige Deine E-Mail-Adresse, um Updates zu erhalten.
Objektbeschreibung
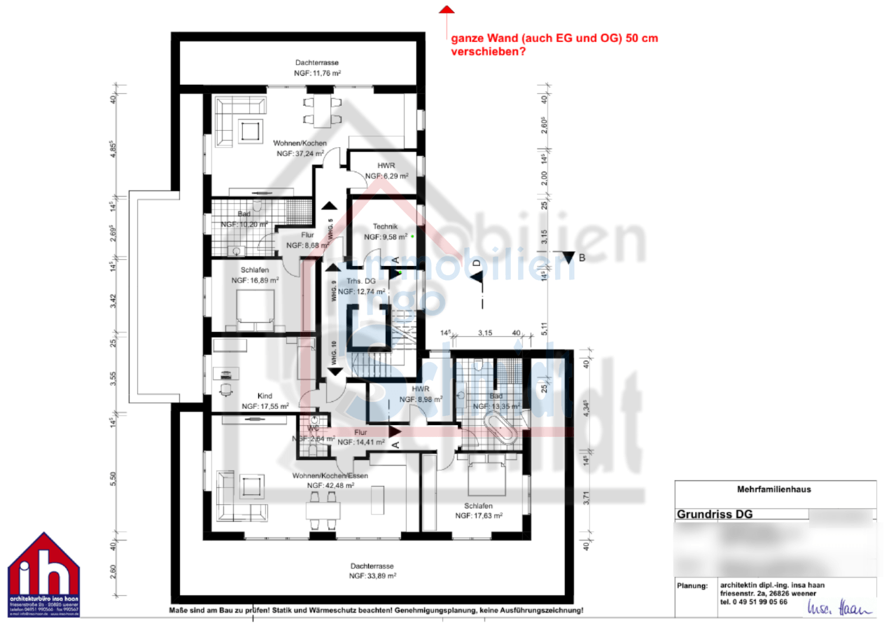
Auf einer großzügigen Grundstücksfläche von 1.409 m² eröffnet sich Ihnen ein außergewöhnliches Entwicklungspotenzial in begehrter Lage von Weener. Das Areal beherbergt derzeit ein leerstehendes Mehrfamilienhaus und bietet ideale Voraussetzungen für eine Neubebauung nach Ihren individuellen Vorstellungen.Bereits durch den bisherigen Eigentümer wurden erste Entwürfe für eine moderne Mehrfamilienhausbebauung erarbeitet:Die Planungen sehen im Erd- und Obergeschoss jeweils zwei bis drei Zimmerwohnungen vor - optimal zugeschnitten auf die Nachfrage nach kompaktem, hochwertigem Wohnraum.Das Dachgeschoss könnte mit zwei exklusiven Penthousewohnungen samt großzügigen Dachterrassen realisiert werden - mit Raum für Weitblick und moderne Wohnkultur.Im Außenbereich stehen bis zu 15 Außenstellplätze zur Verfügung, die über eine ruhige Nebenstraße bequem erreichbar sind. Die zentrale Lage in unmittelbarer Nähe zum Stadtzentrum von Weener sorgt für kurze Wege zu Einkaufsmöglichkeiten, Schulen und Freizeitangeboten - ein starkes Argument für künftige Mieter oder Eigennutzer gleichermaßen.Diese Planungen können Sie direkt übernehmen. Sollten Sie eine andere Inspiration haben, können Sie diese vorab beim Bauamt erfragen. Verwirklichen Sie hier Ihr eigenes Konzept und gestalten Sie Ihr maßgeschneidertes Investmentprojekt - von der Kapitalanlage bis zum hochwertigen Wohnensemble.Ein Grundstück mit Zukunft - mitten in Weener, bereit für Ihre Vision!
So funktioniert es
- Alle neuen Anzeigen matchen wir kostenlos mit Deinen Suchparametern.
- Passende Angebote senden wir Dir in einer E-Mail pro Tag.
- Du kannst auch verschiedene Suchen anlegen und Dich jederzeit abmelden. Mehr dazu
Wir haben soeben eine E-Mail mit Deinem Suchauftrag an Dich geschickt. – Klicke in dieser Mail auf den Bestätigungslink und schon geht's los. Prüfe ggf. auch Deinen Spamordner.
Es gab ein Problem beim Absenden Deiner E-Mail-Adresse. Bitte versuche es erneut.
WARNUNG: Bitte bestätige Deine E-Mail-Adresse, um regelmäßige Updates zu erhalten.