Kaufpreis 719.000 €
Zimmer 5
Größe 123 m²
71229 Leonberg
Objektdaten
Veröffentlicht am: 13. Dezember 2025
Baujahr: 2012
Energieausweis: Liegt bei der Besichtigung vor
Danke! Bitte bestätige Deine E-Mail-Adresse – wir haben Dir soeben eine Mail geschickt.
Es gab ein Problem beim Absenden. Bitte versuche es erneut.
Bitte bestätige Deine E-Mail-Adresse, um Updates zu erhalten.
Objektbeschreibung
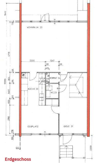
In ruhiger, naturnaher Wohnlage präsentieren wir Ihnen diese familienfreundliche Doppelhaushälfte in hervorragendem Zustand. Mit großzügigen 123 m² Wohnfläche verteilt auf 5,5 Zimmer bietet dieses Domizil idealen Raum für Familien mit Kindern. Besondere Highlights sind der gemütliche Kaminofen im Wohnzimmer sowie die voll ausgestattete Einbauküche, die keine Wünsche offen lässt. Das vollständig ausgebaute Dach schafft zusätzlichen, wertvollen Wohnraum für Ihre individuellen Bedürfnisse.Im Außenbereich erwartet Sie ein gepflegter Garten mit teilüberdachter Terrasse sowie ein Balkon.Die PV-Anlage auf dem Dach sorgt für nachhaltige Energieversorgung und die Solaranlage unterstützt die Warmwasseraufbereitung. Eine Garage mit direktem Hauszugang sowie ein zusätzlicher Stellplatz runden das Angebot ab. Da die Immobilie sofort bezugsfrei ist, können Sie ohne Wartezeit Ihr neues Zuhause beziehen.Das Angebot klingt interessant? Dann freuen wir uns auf Ihren Anruf unter 07031 204260.Energiedaten: EVA, 109,9 kWh/(m²a), Öl, D, Bj. Gebäude 1961, Bj. Wärmeerzeuger 2012Provision 2,38 % inkl. MwSt. aus dem beurkundeten Kaufpreis. Wir haben einen Maklervertrag mit dem Verkäufer über die gleiche Provisionshöhe abgeschlossen.
So funktioniert es
- Alle neuen Anzeigen matchen wir kostenlos mit Deinen Suchparametern.
- Passende Angebote senden wir Dir in einer E-Mail pro Tag.
- Du kannst auch verschiedene Suchen anlegen und Dich jederzeit abmelden. Mehr dazu
Wir haben soeben eine E-Mail mit Deinem Suchauftrag an Dich geschickt. – Klicke in dieser Mail auf den Bestätigungslink und schon geht's los. Prüfe ggf. auch Deinen Spamordner.
Es gab ein Problem beim Absenden Deiner E-Mail-Adresse. Bitte versuche es erneut.
WARNUNG: Bitte bestätige Deine E-Mail-Adresse, um regelmäßige Updates zu erhalten.