Objektdaten
Objektbeschreibung
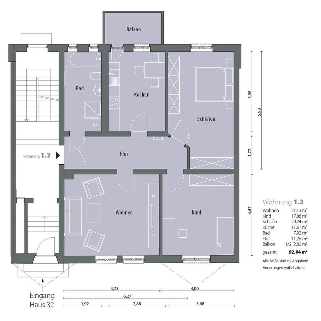
Alle Wohnungen im dritten Bauabschnitt erhalten eine hochwertige Ausstattung. Fußbodenheizungen, ausgewählte Materialen und Oberflächen sowie modernes Design schaffen eine wohnliche Atmosphäre. Lichtdurchflutete Wohnungen, vollkommene Barrierefreiheit und eine wunderschön gestaltete Außenanlage, mit ausreichenden PKW-Stellplätzen und 3 E-Ladesäulen, bieten den künftigen Bewohnern ein ideales Umfeld für ein glückliches Leben im WeidenCarré am Herresberg. Im Erdgeschoss des Wohnhauses wird eine Allgemeinarztpraxis entstehen.Die Hausreinigung, der Winterdienst und die Pflege der Außenanlagen werden von der "Glück Auf" Wohnservice GmbH übernommen und sind in den Nebenkosten enthalten.Auf dem Grundstück befinden sich Stellplätze. Gern prüfen wir bei Bedarf die Verfügbarkeit. Die monatliche Stellplatzmiete beträgt 25 Euro.Ähnliche Angebote
So funktioniert es
- Alle neuen Anzeigen matchen wir kostenlos mit Deinen Suchparametern.
- Passende Angebote senden wir Dir in einer E-Mail pro Tag.
- Du kannst auch verschiedene Suchen anlegen und Dich jederzeit abmelden. Mehr dazu





