3-Zimmer Neubauwohnung am Village Kehl Energieeffizienzhaus KFW 40

Kaufpreis 389.000 €
Zimmer 3
77694 Kehl
Größe 81 m2

Objektdaten

Veröffentlicht am: 15. Dezember 2025
Baujahr: 2024
Energieausweis: Liegt bei der Besichtigung vor
Neu

Über ähnliche Angebote direkt informiert werden

  • Objektbeschreibung

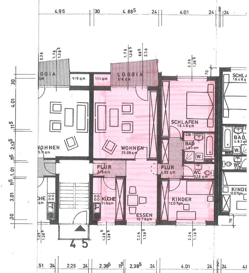
    Objektbeschreibung Das Village Kehl (www.village-kehl.de) wird um zwei Gebäude erweitert und rundet damit städtebaulich den Sundheimer Ortseingang ab.Es entsteht dabei ein Mehrfamilienhaus mit 7 Wohneinheiten in ökologischer Holzbauweise!Zwei barrierefreie 2-Zimmerwohnungen im Erdgeschoss, vier 3-Zimmerwohnungen im 1. und 2. OG und eine 3-Zi-Penthousewohnung mit großzügiger Dachterrasse.Die Wohneinheiten werden als Effizienzhaus 40 (KFW 40 Standard) erstellt und sind damit KFW-förderfähig mit dem Programm "klimafreundlicher Neubau".Das Gebäude wird mit einem begrünten Flachdach und einer Wärmepumpe in Kombination mit einer PV-Anlage erstellt. Stellplätze können mit Ladesäulen ausgestattet werden. Die Fassade erhält punktuell Holzelemente zur architektonischen Anlehnung an die ehemalige Martin-Luther-Kirche (Village Kehl). Raumaufteilung Die Grundrisse sind gut durchdacht und damit sehr funktional und modern gestaltet und verfügen über eine optimale Raumaufteilung (Verhältnis Quadratmeter zu Zimmeranzahl). So lässt es sich komfortabel auch auf einer etwas kleineren Wohnfläche wohnen und spart dadurch Bau- und langfristig Nebenkosten.

    So funktioniert es

    • Alle neuen Anzeigen matchen wir kostenlos mit Deinen Suchparametern.
    • Passende Angebote senden wir Dir in einer E-Mail pro Tag.
    • Du kannst auch verschiedene Suchen anlegen und Dich jederzeit abmelden. Mehr dazu
    Nach oben scrollen