Objektdaten
Objektbeschreibung
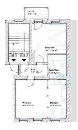
weitere Ausstattungsmerkmale:sanierte Wohnungmit Balkonoffene WohnkücheMultimediaanschlussAbstellraum bzw. KellerIhre neue Wohnung befindet sich in einer ruhigen Randlage des Wohngebietes.Ein großzügig angelegtes grünes Wohnumfeld mit Bänken und Spielplatz bieten viel Platz zum Verweilen und Spielen. Unsere Serviceleistungen vor Ort umfassen einen Hausmeister, Pförtnerleistungen und einen Clubraum, der gern für Familienfeiern genutzt wird.Ein großer Supermarkt, Discounter und die Geschäfte der Vilniuspassage, Ärztehaus und Apotheke, Kindergärten und Schulen sind fußläufig erreichbar.Straßenbahn und Bus stellen in enger zeitlicher Taktung die Verbindung zur Innenstadt sicher.Ähnliche Angebote
So funktioniert es
- Alle neuen Anzeigen matchen wir kostenlos mit Deinen Suchparametern.
- Passende Angebote senden wir Dir in einer E-Mail pro Tag.
- Du kannst auch verschiedene Suchen anlegen und Dich jederzeit abmelden. Mehr dazu





