Kaufpreis 1.199.000 €
Zimmer 6
Größe 162 m²
22926 Ahrensburg
Objektdaten
Veröffentlicht am: 18. Dezember 2025
Baujahr: 1927
Energieausweis: Liegt bei der Besichtigung vor
Danke! Bitte bestätige Deine E-Mail-Adresse – wir haben Dir soeben eine Mail geschickt.
Es gab ein Problem beim Absenden. Bitte versuche es erneut.
Bitte bestätige Deine E-Mail-Adresse, um Updates zu erhalten.
Objektbeschreibung
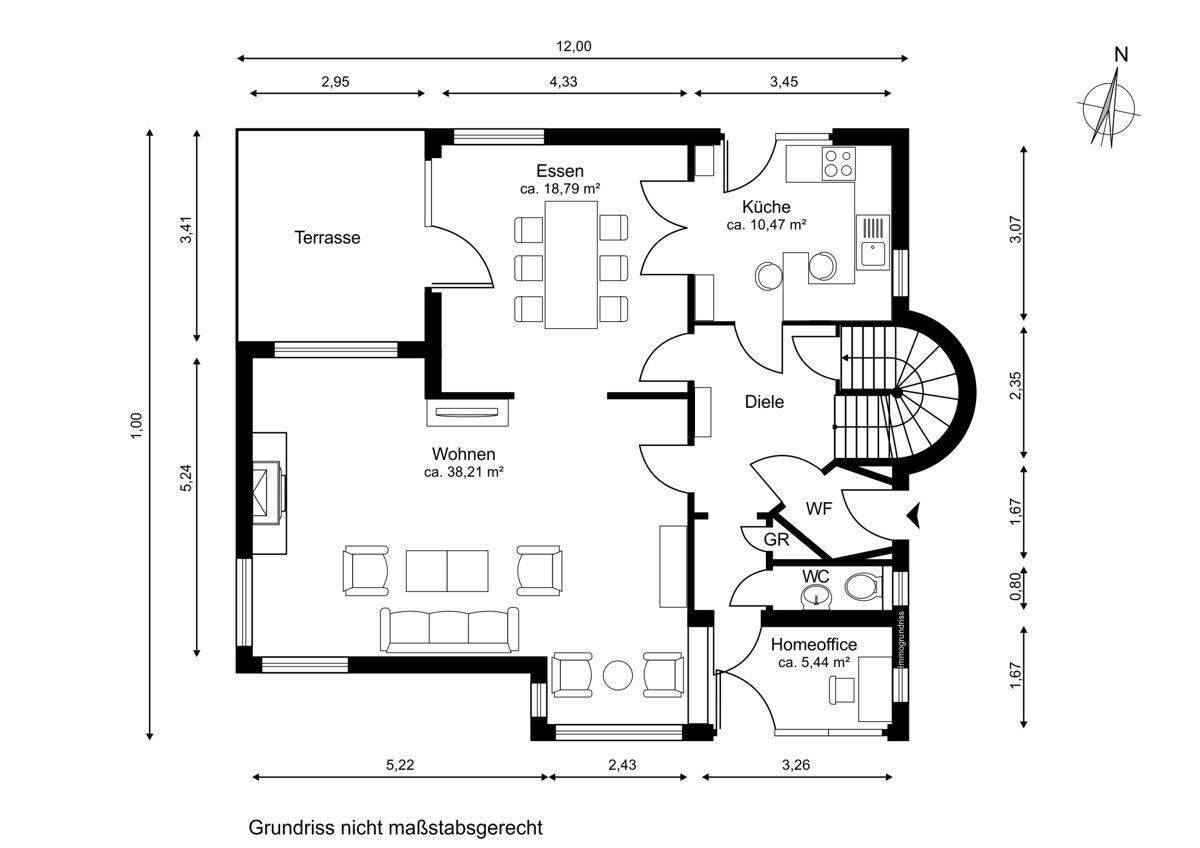
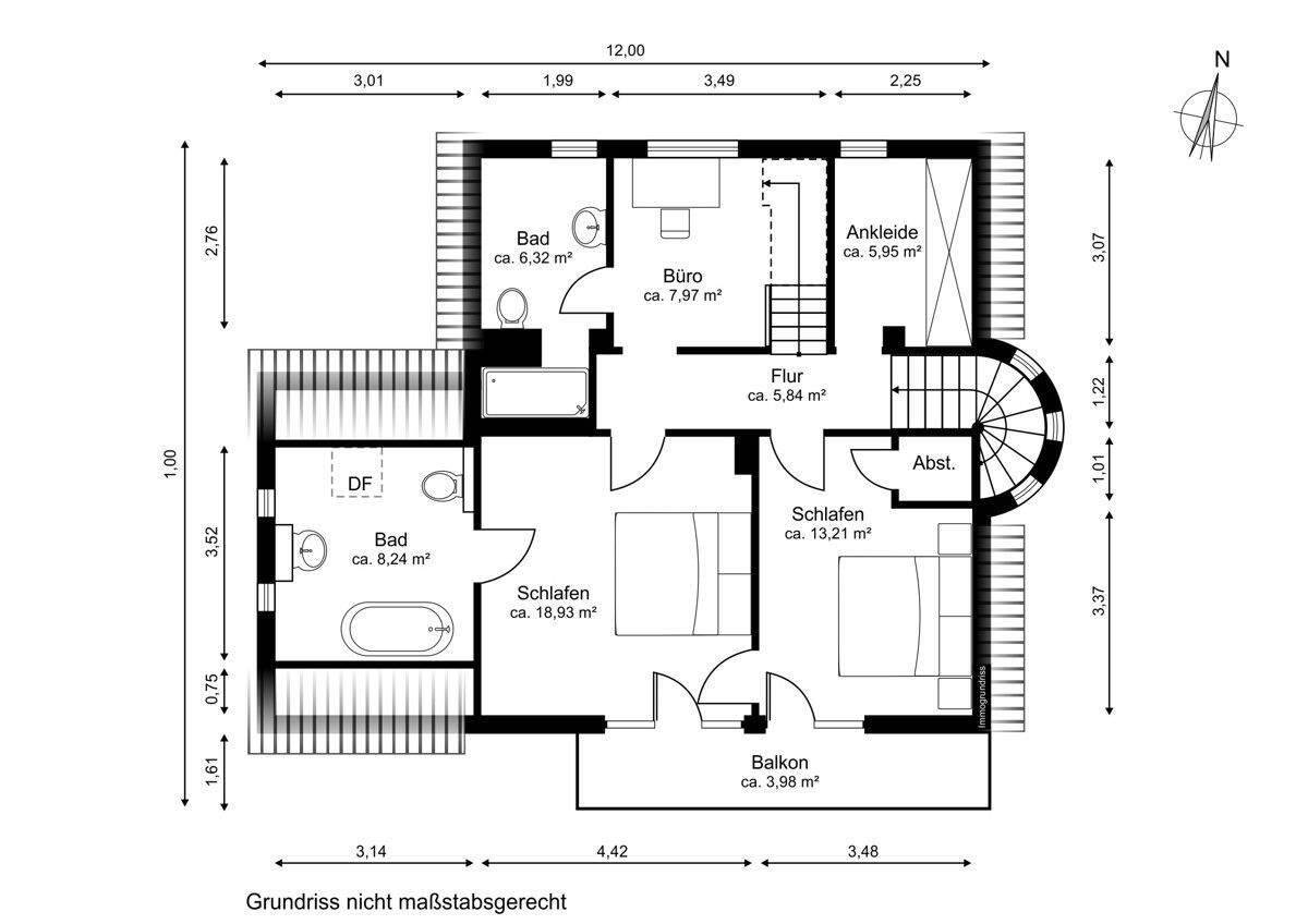
Wer Architektur schätzt - wird diese Villa der Hamburger Baukunst lieben.Im Jahre 1928 entstand unter der Federführung der renommierten Hamburger Architekten Grell & Pruter ein zeitloses Wohnhaus, das bis heute durch sein individuelles Raumkonzept und seine Ausstrahlung begeistert. Eine Komposition aus zurückhaltender Eleganz und hoher Handwerksarbeit, veredelt mit einem geschmackvoll angepassten Interieur.Die Architektenvilla steht unter Erhaltungsschutz der Stadt Ahrensburg und versteht sich als Muse - ein Kunstwerk, das inspiriert. Geometrische Formen, feine Details sowie prägende Stilelemente des Expressionismus und des Art Déco lassen Haus und Garten zu einem harmonischen Gesamtbild verschmelzen. Die Backsteinelemente auf der Putzfassade sowie der puristisch gehaltene Kaminzug flankiert von den beiden Löwen auf der Auffahrt wirken wie einem Märchen aus Stein entsprungen. Im Inneren des Hauses setzt sich dieser Geist fort. Stuckelemente mit klaren Linien, ein formschön verlegtes Parkett sowie ein Treppenhaus, das sich als Sinnbild architektonischer Schönheit widerspiegelt werden Sie erwarten.Im Zuge einer aufwendigen Modernisierung ab 2015 wurde die Villa behutsam und stilsicher perfektioniert. Mit großer Liebe zum Detail gelang es, den Charakter des Hauses fortzuführen und gleichzeitig neue Wohnqualitäten zu schaffen. So wurde die historische Substanz mit Leichtigkeit ergänzt, um ein Höchstmaß an Komfort, Funktion und Ästhetik zu vereinen.Die Architektenvilla präsentiert sich über insgesamt vier Ebenen. Die großzügige Wohn-Nutzfläche von über 260 m² verteilt sich auf Erdgeschoss, Obergeschoss, ausgebautes Dachgeschoss sowie dem Untergeschoss.Mittelpunkt des Hauses ist der lichtdurchflutete, großzügige Wohn-Essbereich mit Zugang zur Terrasse - ein ausdrucksstarker Wohnraum, geprägt von den originalen Art Déco-Stuckverzierungen und dem imposanten Backsteinkamin. Verschiedene Sitzbereiche laden zum Verweilen ein. Die angrenzende Küche wurde maßgeschneidert gestaltet - fein abgestimmt auf die Architektur des Hauses und modern ausgestattet. Der Garten selbst ist eine Oase mit Steinornamenten geschmückt, eingerahmt von altem Baumbestand, bietet er Rückzug und Inspiration zugleich. Die Terrasse wird hier zu Ihrer privaten Sommerbühne. Ein offener, gläserner Arbeitsbereich sowie ein Gäste-WC und eine kleine Garderobe komplettieren das Erdgeschoss.Das expressive, detailreiche Treppenhaus mit Mosaikfenstern führt Sie in das Obergeschoss zu den privaten Wohnbereichen. Architekt Henry Grell maß den Treppenhäusern große Bedeutung bei - sie sollten nicht nur funktional, sondern auch repräsentativ und ästhetisch überzeugen.Im Obergeschoss erwarten Sie zwei Schlafzimmer, jeweils mit Zugang zum Südbalkon, ein Bad en suite mit Wanne sowie ein großzügiger Ankleidebereich mit Tischlereinbauten. Ein Homeoffice und ein weiteres Duschbad vervollständigen diese Ebene.Das ausgebaute Dachgeschoss ist nicht als Wohnfläche ausgewiesen, bietet jedoch zusätzlichen Wohnkomfort - perfekt als Gästeetage mit einer Galerie, einem Giebelzimmer und eigenem Duschbad. Als Sonderanfertigung greift das schmiedeeiserne Geländerdie Formensprache der Eingangstür und der Stuckfriese auf.Das Haus ist vollunterkellert - hier befinden sich die Gasheizung, ein Hauswirtschaftsraum sowie viel Lagermöglichkeiten. Für Ihre Fahrzeuge stehen Ihnen eine kleine Garage sowie zwei Außenstellplätze auf der Auffahrt zur Verfügung. Wir hoffen, Ihnen mit dieser Beschreibung einen ersten Eindruck von der Inspiration dieses Hauses vermittelt zu haben und freuen uns darauf, Ihnen "Die märchenhafte Muse" bei einer persönlichen Besichtigung näher vorstellen zu dürfen.
So funktioniert es
- Alle neuen Anzeigen matchen wir kostenlos mit Deinen Suchparametern.
- Passende Angebote senden wir Dir in einer E-Mail pro Tag.
- Du kannst auch verschiedene Suchen anlegen und Dich jederzeit abmelden. Mehr dazu
Wir haben soeben eine E-Mail mit Deinem Suchauftrag an Dich geschickt. – Klicke in dieser Mail auf den Bestätigungslink und schon geht's los. Prüfe ggf. auch Deinen Spamordner.
Es gab ein Problem beim Absenden Deiner E-Mail-Adresse. Bitte versuche es erneut.
WARNUNG: Bitte bestätige Deine E-Mail-Adresse, um regelmäßige Updates zu erhalten.