Objektdaten
Objektbeschreibung
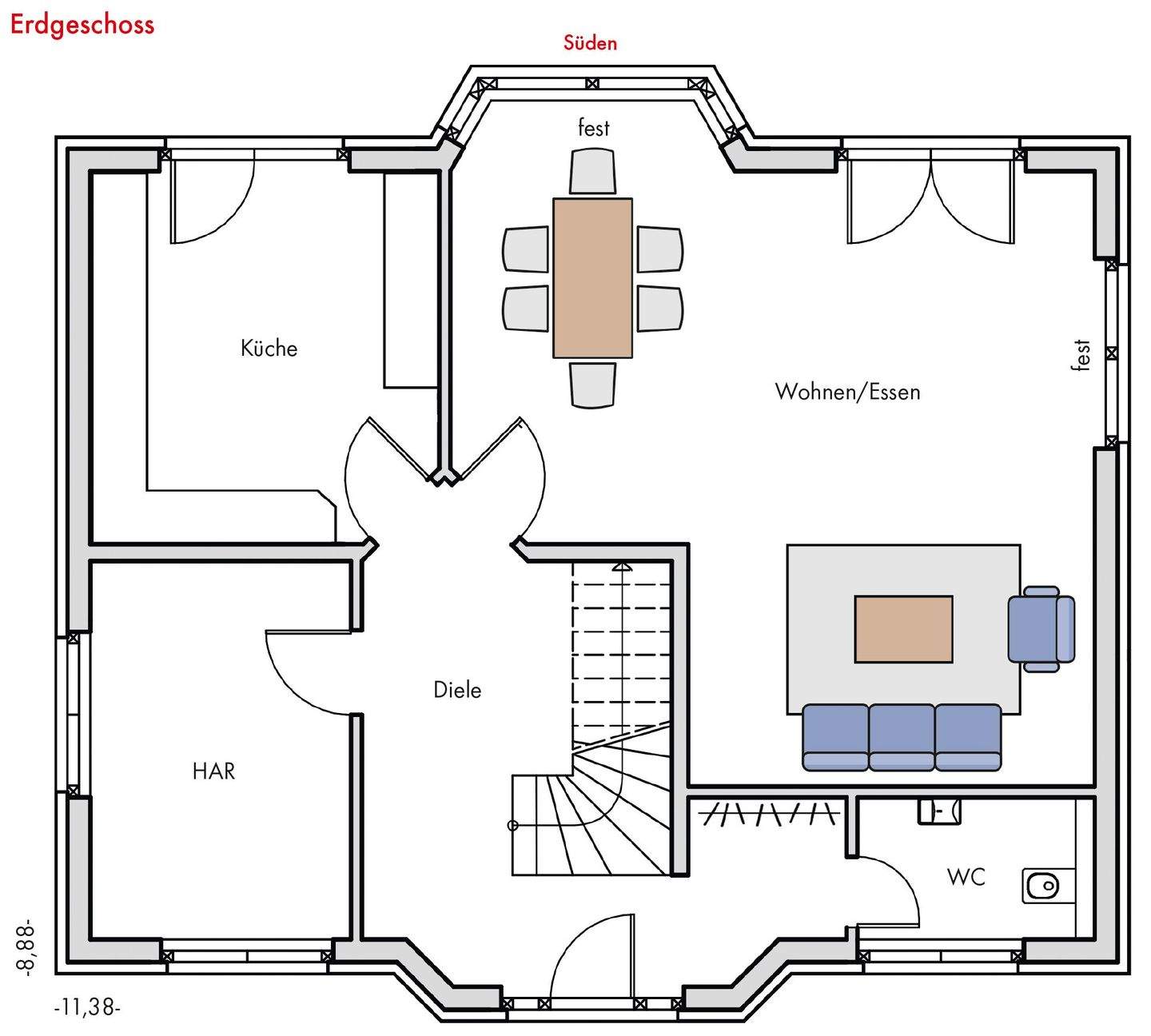
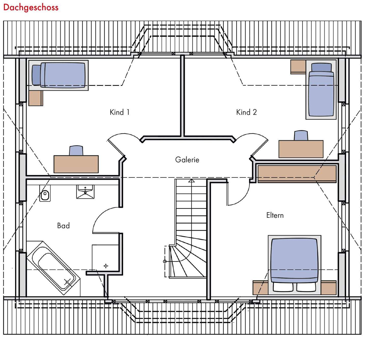
Es handelt sich hier um ein sehr schönes und großzügig geplantes Einfamilienhaus im Landhausstil. Mit Erker und Gauben ! Die Bilder können Sonderwünsche enthalten (gegen Aufpreis).Ähnliche Angebote
So funktioniert es
- Alle neuen Anzeigen matchen wir kostenlos mit Deinen Suchparametern.
- Passende Angebote senden wir Dir in einer E-Mail pro Tag.
- Du kannst auch verschiedene Suchen anlegen und Dich jederzeit abmelden. Mehr dazu




